home page > Annunci immobiliari in Italia > Lombardia > Mantova > Bagnolo San Vito > Negozi uffici capannoni in vendita > Scheda immobile

Negozi uffici capannoni in vendita a Bagnolo San Vito

COMPILA IL MODULO SOTTOSTANTE PER RICEVERE MAGGIORI INFORMAZIONI







Invia la richiesta ad altre agenzie
Accetto il trattamento dei miei dati



Immobiliare studio virgilio di valenza jolena

Via f.lli cervi 46
46034 Borgo Virgilio (MN)

.0376.1697786

Bagnolo San Vito
Prezzo: € 165.000
2
300
1



Descrizione:
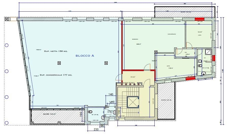
Bagnolo san vito loc. San biagio: su strada di forte passaggio, proponiamo in vendita, al primo ed ultimo piano, locale direzionale/commerciale di 300 mq allo stato di grezzo, con grande locale cantinato/deposito di 237 mq posto al piano interrato. L'immobile gode di ingresso indipendente e 6 posti auto di uso esclusivo, oltre ad un parcheggio pubblico adiacente lo stabile.ampie superfici finestrate apribili e due bagni garantiscono la possibilità a più destinazioni la possibilità di dividere il locale in due soluzioni distinte. La struttura ha predisposizioni per posizionamento di ascensore o montacarichi nel vano scale, impiantistica già posizionata per realizzare altri 6 bagni, oltre ai 2 esistenti. Possibilità di averlo completo, concordando finiture e prezzo finale. Vendita ad iva classe energetica: non soggetto




Caratteristiche immobile:
Codice inserzione: 1773978644
Rif. Annuncio: 6495CA59137
Provincia: Mantova
Comune: Bagnolo San Vito
Zona: San Biagio  
Superficie (Mq) : 300 Mq.
Tipo immobile: Negozi uffici capannoni
Stato immobile: nuovo
Piano: 1
Bagni: 2
Terrazze: 2

Costi:
Prezzo € 165.000


Efficienza energetica:
Classe energetica: Immobile non soggetto all'obbligo di certificazione
Riscaldamento: autonomo