home page > Annunci immobiliari in Italia > Lombardia > Mantova > Moglia > Terreni in vendita > Scheda immobile

Terreni in vendita a Moglia

COMPILA IL MODULO SOTTOSTANTE PER RICEVERE MAGGIORI INFORMAZIONI







Invia la richiesta ad altre agenzie
Accetto il trattamento dei miei dati



Agenzia immobiliare castello di ferdinando oliani

Piazza a. Luppi 1/a
46029 Suzzara (MN)

0376533860    Riferimenti: Ferdinando Oliani

Moglia
Prezzo: € 60
1570



Descrizione:
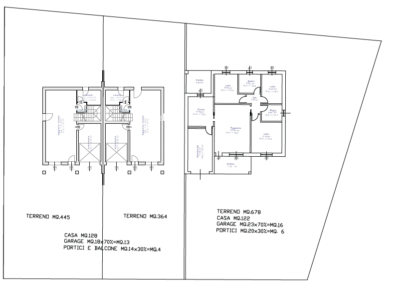
Moglia-lotto di terreno edificabile in posizione di sicuro interesse-occasione da non perdere sia per ditte costruttrici che privati alla ricerca di terreno edificabile a destinazione residenziale!!! nel centro abitato di moglia proponiamo in vendita lotto di terreno di 1570 mq. Circa, già urbanizzato e pronto per la edificazione.lotto già munito di stacchi per allacci reti corrente elettrica-gas-acqua con indice di fabbricabilità fino a 2 mc/mq.interessante per la posizione centrale in prossimità di supermercato, comoda alla piazza e ai servizi in genere, si presta alla realizzazione di soluzioni mono o plurifamiliari,. In allegato è visibile una proposta costruttiva molto interessante da potersi realizzare.prezzo affare!!! soli € 60,00 al mq trattabili!!!...




Caratteristiche immobile:
Codice inserzione: 1758854639
Rif. Annuncio: TERRENO 001
Provincia: Mantova
Comune: Moglia
Superficie (Mq) : 1570 Mq.
Tipo immobile: Terreni

Costi:
Prezzo € 60


Efficienza energetica:
Classe energetica: Immobile non soggetto all'obbligo di certificazione