Descrizione:
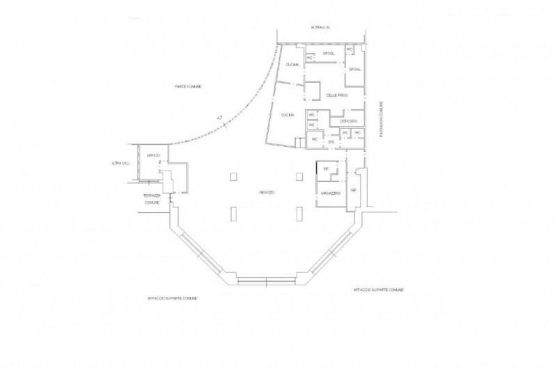
Locale commerciale ad uso ristorativo posto al terzo piano all'interno del centro commerciale 'la corte lom-barda'. Inaugurato nel novembre 2006 il centro commerciale si sviluppa su un'area di circa 80.000 mqed ospita, su due livelli commerciali, 140 negozi e 7 medie superfici.il locale è inserito nel contesto food del centro commerciale nella zona dedicata alle iniziative promozionali e ludiche oltre che all'ingresso del cinema multisala arcadia. Le altre attività sono esclusivamente food dove sono presenti i principali marchi in franchising. La caratteristica principale e particolare di questo centro com-merciale è dovuta dalla possibilità di accedere ai vari piani della struttura direttamente dai parcheggi auto esterni posti ad ogni singolo piano.superficie commerciale: circa 446 mqpiena proprietà:c/1 (cf): foglio 2 particella 303 subalterno 121il prezzo è da intendersi iva esclusa (tipicamente aliquota pari al 22%). La proprietà si rende disponibile all'applicazione del reverse charge iva.