home page > Annunci immobiliari in Italia > Lombardia > Milano > Inveruno > appartamenti in vendita > Scheda immobile

Appartamento in vendita a Inveruno

COMPILA IL MODULO SOTTOSTANTE PER RICEVERE MAGGIORI INFORMAZIONI







Invia la richiesta ad altre agenzie
Accetto il trattamento dei miei dati



Inveruno

Via dante alighieri 4/6
20010 Inveruno (MI)

0239562365

Inveruno
Prezzo: € 207.000
3
1
78
1



Descrizione:
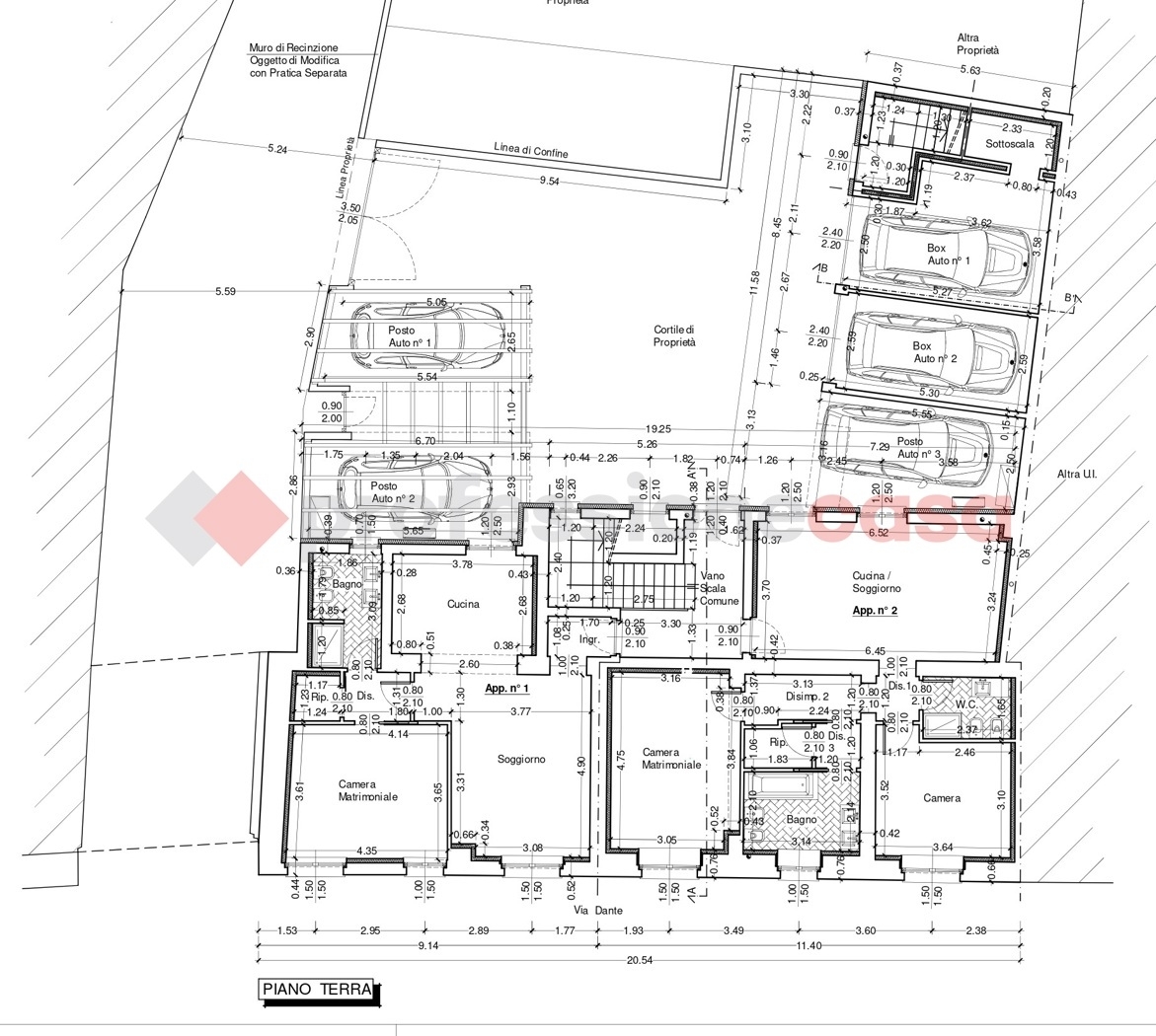
Nuova realizzazione: prossimo al centro cittadino, in piccola corte lombarda, proponiamo appartamenti 2/3 locali con posto auto di pertinenza. appartamento 1 - piano terra- 78 mq + posto auto ?207.000appartamento 2 - piano terra- 97 mq + posto auto ?265.000appartamento 3 - piano primo- 78 mq + balcone 7 mq + posto auto ?212.000appartamento 4 - piano primo- 105 mq + balcone 10 mq + posto auto ?295.000vedi piante allegateil progetto esecutivo e la realizzazione del fabbricato, trattasi di ristrutturazione di complesso cortilizio, nonché la scelta dei materiali, sono stati valutati nel rispetto delle leggi vigenti in materia di risparmio energetico e requisiti acustici passivi nei fabbricatidi seguito si elencano le caratteristiche principali che concorrono al raggiungimento della classe energetica ?a4? sull?intero complesso residenziale e che garantiscono una classe energetica non inferiore alla ?a? per ogni singola unità immobiliare: ottimo livello di coibentazione ed isolamento termico e acustico delle superfici opache rivolte verso l?esterno; ottimo livello di trasmittanza termica dei serramenti installati (triplo vetro + sei camere); impianto di riscaldamento e produzione di acqua calda sanitaria a pompa di calore con totale funzionamento elettrico (no gas metano); impianto di raffrescamento idronico (stessa unità esterna pompa di calore reversibile); impianto fotovoltaico circa 3,2 kw di picco dedicato. capitolato consultabile in ufficiooneri a carico dei promissari acquirenti le denunce catastali, i contratti delle utenze enel, enia-agac e telecom. La vendita e' soggetta ad iva (4% agevolazione prima casa 10% seconda casa).




Caratteristiche immobile:
Codice inserzione: 1763512771
Rif. Annuncio: Cod. rif 3276114VRG
Provincia: Milano
Comune: Inveruno
Superficie (Mq) : 78 Mq.
Tipo immobile: Appartamento
Anno costruzione/ristrutturazione: 2025
Camere: 3
Posti auto scoperti: 1 posto auto
Bagni: 1

Costi:
Prezzo € 207.000


Efficienza energetica:
Indice di prestazione energetica (EPgl): 10 kWh/mq annui
Riscaldamento: autonomo