Descrizione:
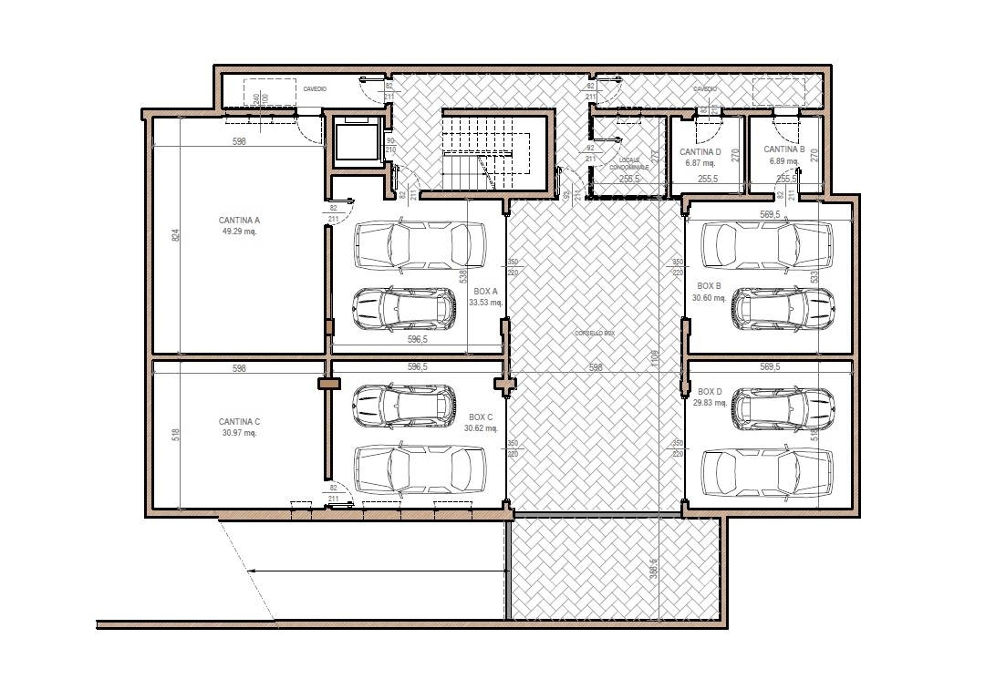
Legnano: proponiamo in vendita prestigioso appartamento di 3 locali in costruzione nel nuovo intervento residenziale di soli 4 appartamenti in zona legnarello.l'appartamento di mq 175 è posto al piano terra ed è composto da 3 locali con soggiorno, cucina a vista, ampio ripostiglio, doppi servizi e due camere.aree esterne di proprietà composte da ampi terrazzi e balconi per un totale di 133 mq, giardino privato di mq 137 e fioriere di mq 20.tutti gli appartamenti sono dotati di impianto fotovoltaico di proprietà con potenza di 4.56 kw.nella nuova residenza la cura del dettaglio, la scelta dei materiali e gli impianti tecnologici all'avanguardia, a basso impatto ambientale, sono a servizio del vostro benessere, assicurandovi comfort, sicurezza ed efficienza energetica.tutte le abitazioni saranno certificate in classe a4.la flessibilità delle soluzioni abitative consente di creare spazi ad hoc che soddisfano tutti i gusti e le esigenze, rispecchiando lo stile e la personalità di chi vi abita.nella nuova residenza è ancora possibile scegliere la suddivisione degli spazi che più si avvicina alle vostre esigenze.il progetto è stato studiato per ottenere appartamenti con spazi razionali, ambienti luminosi, spazi esterni da godere (balconi, terrazzi) e cantine.scegliere di vivere in questa nuova residenza significa poter disporre, nel raggio di brevissima distanza, di esercizi di vicinato e scuole, senza rinunciare alla comodità di abitare vicino al centro cittadino.il nuovo appartamento proposto in vendita a legnano, è identificato nella planimetria con la lettera b.possibilità di acquisto dell'ampio box doppio. - rif. 400consegna aprile 2026principali caratteristiche tecniche? riscaldamento autonomo a pannelli radianti a pavimento? pompa di calore come generatore termico? predisposizione impianto di purificazione dell'aria tramite il sistema di ventilazione meccanica? no gas per una maggiore sicurezza ma sistema ad induzione? impianto fotovoltaico di proprietà per ogni appartamento di 4,56 kw? isolamento termico ed acustico di elevata qualità? predisposizione aria condizionata? serramenti in pvc bianco con vetri basso emissivi? tapparelle in alluminio motorizzate? cassonetti e tapparelle a scomparsa per un design moderno? predisposizione zanzariere? predisposizione impianto domotico e antintrusione? finiture pavimenti e rivestimenti di altissimo livello? portoni sezionali coibentati motorizzatiper maggiori informazioni o per fissare un appuntamento per una visita, potete contattarci direttamente allo o se preferite, scriveteci tramite mail all'indirizzo: e sarete ricontattati nel più breve tempo possibile.inoltre, nel caso in cui per perfezionare l'acquisto, necessitiate di vendere il vostro attuale immobile, la nostra società potrà curare tutti gli aspetti necessari, suggerendovi la miglior soluzione di vendita nel minor tempo possibile partendo dalla giusta valutazione del vostro immobile.la valutazione della casa è un passo molto importante soprattutto se si vuole vendere in tempi rapidi e con il massimo profitto.per sapere quanto vale il vostro immobile, contattateci direttamente senza impegno e saremo lieti di fissare un appuntamento per una giusta valutazione.rimanendo a vostra disposizione per qualsiasi ulteriore informazione, vi ringraziamo per aver valutato la nostra offerta.b&p real estate s.a.s. Legnano (mi) via c. Del fante n.16 - tel. - mail: - sito internet: