home page > Annunci immobiliari in Italia > Lombardia > Milano > Legnano > Negozi uffici capannoni in vendita > Scheda immobile

Negozi uffici capannoni in vendita a Legnano

COMPILA IL MODULO SOTTOSTANTE PER RICEVERE MAGGIORI INFORMAZIONI







Invia la richiesta ad altre agenzie
Accetto il trattamento dei miei dati



Home tend

Via lattanzio, 77
20121 Milano

0289730961

Legnano
Prezzo: € 525.000
C
373



Descrizione:
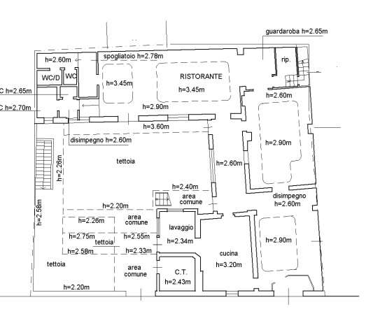
Questo immobile ex ristorante offre un'opportunità unica nel suo genere. Con il suo incantevole cortile interno e una posizione centrale, questo spazio è pronto per essere trasformato in qualcosa di straordinario. caratteristiche principali:- immobile ex ristorantepiano terra ( mq 250circa)- cortile interno (mq 80 circa)- spaziosa cantina al piano interrato, ideale per la conservazione di vini o per ulteriore spazio di stoccaggio.- due unità immobiliari accatastate a3 e a10 al primo piano, offrendo molteplici possibilità di utilizzo.questa è un'opportunità da non perdere! contattateci oggi stesso per organizzare una visita e scoprire tutto il potenziale che questo immobile può offrire.classe energetica: c 1505,17 kwh/m3 a




Caratteristiche immobile:
Codice inserzione: 1710202252
Rif. Annuncio: V002565
Provincia: Milano
Comune: Legnano
Superficie (Mq) : 373 Mq.
Tipo immobile: Negozi uffici capannoni

Costi:
Prezzo € 525.000


Efficienza energetica:
Classe energetica: C
Indice di prestazione energetica (EPgl): 1505.17 kWh/mc annui