home page > Annunci immobiliari in Italia > Lombardia > Milano > Liscate > Negozi uffici capannoni in vendita > Scheda immobile

Negozi uffici capannoni in vendita a Liscate

COMPILA IL MODULO SOTTOSTANTE PER RICEVERE MAGGIORI INFORMAZIONI







Invia la richiesta ad altre agenzie
Accetto il trattamento dei miei dati



Immobili servizi immobiliari s.a.s.

Via stradivari 7
20121 Milano

0229523119    Riferimenti: Giancarlo Giraldi

Liscate
Prezzo: € 639.000
3
581
Piano terra



Descrizione:
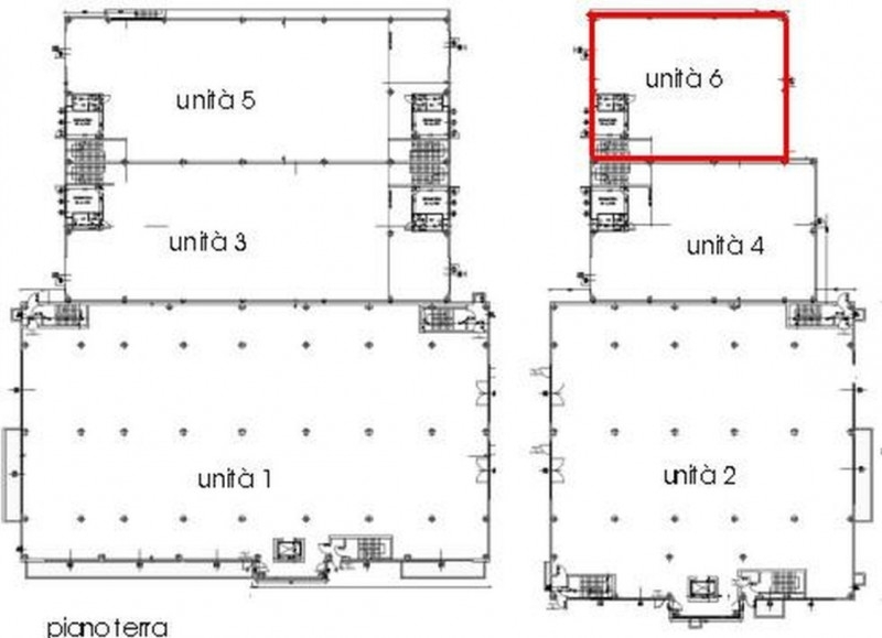
Vende a liscate, capannone mq. 581 ca. Prezzo euro. 639.000,00 immobile su due livelli, cosi' suddiviso: mq 449 ca. Di zona ad uso lavorazione al piano terra e mq 132 ca. Di soppalco utilizzabili come ufficio. Capannone, molto luminoso, dotato di ingresso indipendente, lucernari; l'edificio e' nuovo. Immobile privo di riscaldamento. Ideale per qualsiasi tipo di ativita' artigianale e industriale. Possibilita' di abbinare altre metrature nello stesso complesso. Immobili non soggetto all'obbligo di certificazione energetica. L'unita' in oggetto e' quella evidenziata in rosso. rif.: zv605




Caratteristiche immobile:
Codice inserzione: 1759372640
Rif. Annuncio: ZV605
Provincia: Milano
Comune: Liscate
Superficie (Mq) : 581 Mq.
Tipo immobile: Negozi uffici capannoni
Stato immobile: usato
Anno costruzione/ristrutturazione: 2026
Piano: Piano terra
Bagni: 3

Costi:
Prezzo € 639.000


Efficienza energetica:
Classe energetica: Immobile non soggetto all'obbligo di certificazione