home page > Annunci immobiliari in Italia > Lombardia > Milano > Magenta > Negozi uffici capannoni in affitto > Scheda immobile

Negozi uffici capannoni in affitto a Magenta

COMPILA IL MODULO SOTTOSTANTE PER RICEVERE MAGGIORI INFORMAZIONI







Invia la richiesta ad altre agenzie
Accetto il trattamento dei miei dati



Magenta

Via garibaldi 75/77
20013 Magenta (MI)

0297280173

Magenta
Prezzo: € 1.000
1
85



Descrizione:
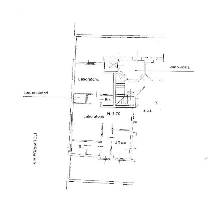
Magenta, proponiamo in affitto un ampio e funzionale spazio a uso ufficio/laboratorio, situato al piano terra, a pochi passi dal centro di magenta.l'immobile si sviluppa su una superficie ben distribuita ed è cosù composto: tre locali ideali per attività tecniche, artigianali o per attività amministrative o gestionali, servizio igienico (s.i.), ripostiglio/deposito interno;la distribuzione degli spazi consente un?ottima separazione tra le zone operative e quelle direzionali, rendendo l'immobile particolarmente adatto a studi professionali, laboratori artigianali, centri assistenza tecnica, start-up o piccole aziende.contattaci per maggiori informazioni, o per fissare una visita. Rif. 1010




Caratteristiche immobile:
Codice inserzione: 1760312335
Rif. Annuncio: Cod. rif 3266494ACU
Provincia: Milano
Comune: Magenta
Superficie (Mq) : 85 Mq.
Tipo immobile: Negozi uffici capannoni
Bagni: 1

Costi:
Prezzo € 1.000


Efficienza energetica: