home page > Annunci immobiliari in Italia > Lombardia > Milano > Parabiago > Case e ville indipendenti in vendita > Scheda immobile

Case e ville indipendenti in vendita a Parabiago

COMPILA IL MODULO SOTTOSTANTE PER RICEVERE MAGGIORI INFORMAZIONI







Invia la richiesta ad altre agenzie
Accetto il trattamento dei miei dati



Royal immobiliare di geom. Leo pasquale

Via san michele, 13
20015 Parabiago (MI)

03311977365

Parabiago
Prezzo: € 515.000
A4
3
2
144



Descrizione:
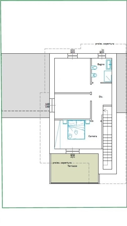
Ville iris è una nuova realizzazione posizionata in una delle zone residenziali più belle e richieste di parabiago identificata come ravello-oltre ferrovia. L'intervento vede la realizzazione di sei ville singole, suddivise in due lotti da tre unità di varie metrature, tutte dallo stile moderno ed essenziale, indipendente una dalle altre. Le abitazioni saranno in classe energetica a, dotate delle tecnologie costruttive di ultima generazione in tema di risparmio energetico. Ogni villa sarà disposta su due piani, terra e primo, con grandi giardini, porticati e terrazzi al piano primo, oltre box doppi. Ogni abitazione è da personalizzare nella scelte delle finiture quali pavimenti, rivestimenti e porte interne.nnvilla 1- and euro; 515.000. Villa di 144 mq, giardino di 165 mq, portico di 20 mq e terrazzo di 20 mq. Abitazione così suddivisa: piano terra di 66,50 mq con ingresso su ambia zona living, cucina abitabile o aperta a preferenza del cliente servita da bellissimo porticato di 20 mq, disimpegno, bagno; piano primo di 77,50 mq con camera matrimoniale servita da terrazzo, camera singola, camera doppia e bagno. Il giardino di 165 mq circonda i quattro lati della casa. Il box è doppio in larghezza. - maggiori dettagli: porta blindata, cucina abitabile




Caratteristiche immobile:
Codice inserzione: 1761098553
Rif. Annuncio: villa 1
Provincia: Milano
Comune: Parabiago
Superficie (Mq) : 144 Mq.
Tipo immobile: Case e ville indipendenti
Stato immobile: usato
Camere: 3
Bagni: 2

Costi:
Prezzo € 515.000


Efficienza energetica:
Classe energetica: A4
Riscaldamento: autonomo
Tipologia riscaldamento: gas