home page > Annunci immobiliari in Italia > Lombardia > Milano > Peschiera Borromeo > Negozi uffici capannoni in vendita > Scheda immobile

Negozi uffici capannoni in vendita a Peschiera Borromeo

COMPILA IL MODULO SOTTOSTANTE PER RICEVERE MAGGIORI INFORMAZIONI







Invia la richiesta ad altre agenzie
Accetto il trattamento dei miei dati



Quimmo agency

Via galileo galilei 6
48018 Faenza (RA)

0299944698

Peschiera Borromeo
Prezzo: € 2.000.000
D
3
3500



Descrizione:
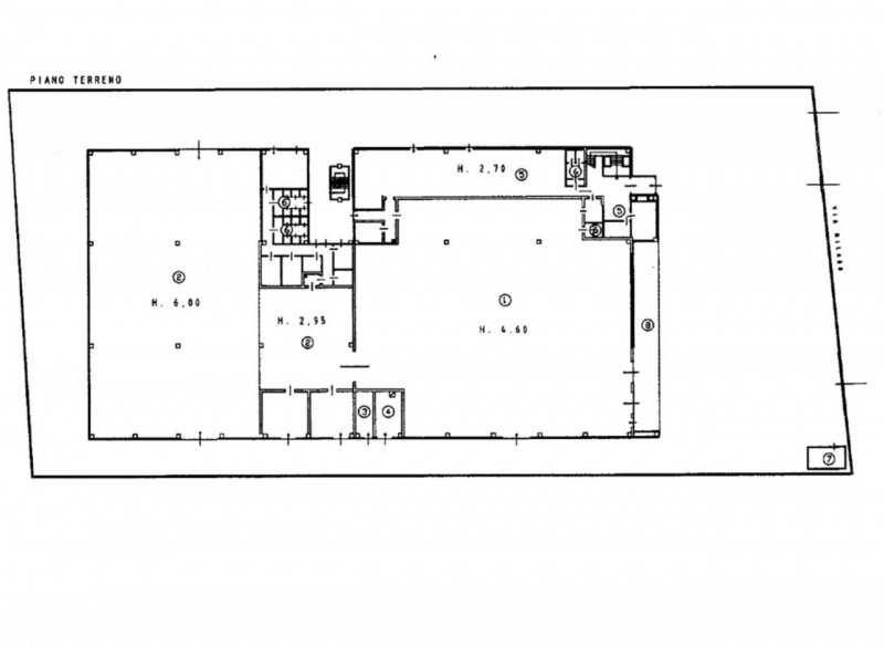
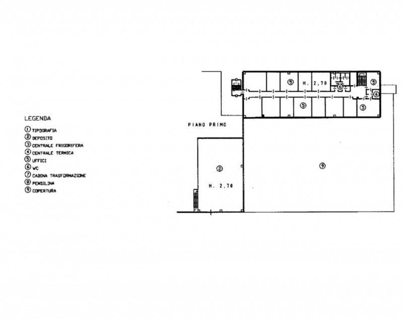
In posizione strategica a peschiera borromeo (mi), via milano 5, proponiamo in vendita un capannone produttivo con uffici, ideale per attività industriali, artigianali o logistiche. L'immobile si sviluppa su due livelli (piano terra e primo piano) e offre ampi spazi interni.la struttura è dotata di accesso carrabile e spazi di manovra adatti anche a mezzi pesanti. Gli uffici, ben distribuiti e luminosi, garantiscono ambienti funzionali e facilmente personalizzabili.la vicinanza con le principali arterie stradali e la città di milano rende questa soluzione particolarmente interessante per aziende che cercano una sede efficiente, ben collegata e in un contesto produttivo dinamico.superficie di c.a. 3.500 mqarea esterna c.a. 2.163 mqclasse energetica 'd'




Caratteristiche immobile:
Codice inserzione: 1758683082
Rif. Annuncio: 2536093
Provincia: Milano
Comune: Peschiera Borromeo
Superficie (Mq) : 3500 Mq.
Tipo immobile: Negozi uffici capannoni
Stato immobile: usato
Bagni: 3

Costi:
Prezzo € 2.000.000


Efficienza energetica:
Classe energetica: D
Riscaldamento: autonomo