home page > Annunci immobiliari in Italia > Lombardia > Milano > San Giuliano Milanese > Negozi uffici capannoni in affitto > Scheda immobile

Negozi uffici capannoni in affitto a San Giuliano Milanese

COMPILA IL MODULO SOTTOSTANTE PER RICEVERE MAGGIORI INFORMAZIONI







Invia la richiesta ad altre agenzie
Accetto il trattamento dei miei dati



Immobili servizi immobiliari s.a.s.

Via stradivari 7
20121 Milano

0229523119    Riferimenti: Giancarlo Giraldi

San Giuliano Milanese
Prezzo: € 19.166
D
3
3700
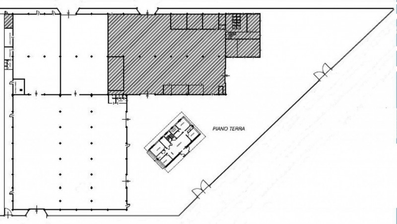
Piano terra



Descrizione:
Affitta a san giuliano milanese, sesto ulteriano, capannone con uffici ,riscaldamento autonomo a gas - cl. Energetica: d - kwh/mc anno: 37,15 canone annuo euro. 230.000,00 ( pari a ca. 19.166,00 euro al mese) spese annue a parte , l'immobile e' in ordine, l'edificio e' anni 70, il capannone ha una superficie complessiva di mq. 3.700 ca , di cui mq. 3.100 ca di capannone e mq. 600 ca di uffici su tre livelli.la palazzina e' indipendente dal capannone. Il capannone presenta 4 accessi a rasi di cui 2 dal cortile e due dalle strade lateriali. Ha un'altezza sottotrave dim t.7,00. disponibile dal rif.: zl1175




Caratteristiche immobile:
Codice inserzione: 1736135067
Rif. Annuncio: ZL1175
Provincia: Milano
Comune: San Giuliano Milanese
Superficie (Mq) : 3700 Mq.
Tipo immobile: Negozi uffici capannoni
Stato immobile: usato
Anno costruzione/ristrutturazione: 1975
Piano: Piano terra
Bagni: 3

Costi:
Prezzo € 19.166


Efficienza energetica:
Classe energetica: D
Indice di prestazione energetica (EPgl): 37 kWh/mc annui
Riscaldamento: autonomo