home page > Annunci immobiliari in Italia > Lombardia > Milano > San Giuliano Milanese > Negozi uffici capannoni in affitto > Scheda immobile

Negozi uffici capannoni in affitto a San Giuliano Milanese

COMPILA IL MODULO SOTTOSTANTE PER RICEVERE MAGGIORI INFORMAZIONI







Invia la richiesta ad altre agenzie
Accetto il trattamento dei miei dati



Immobili servizi immobiliari s.a.s.

Via stradivari 7
20121 Milano

0229523119    Riferimenti: Giancarlo Giraldi

San Giuliano Milanese
Prezzo: € 4.583
G
3
670
Piano terra



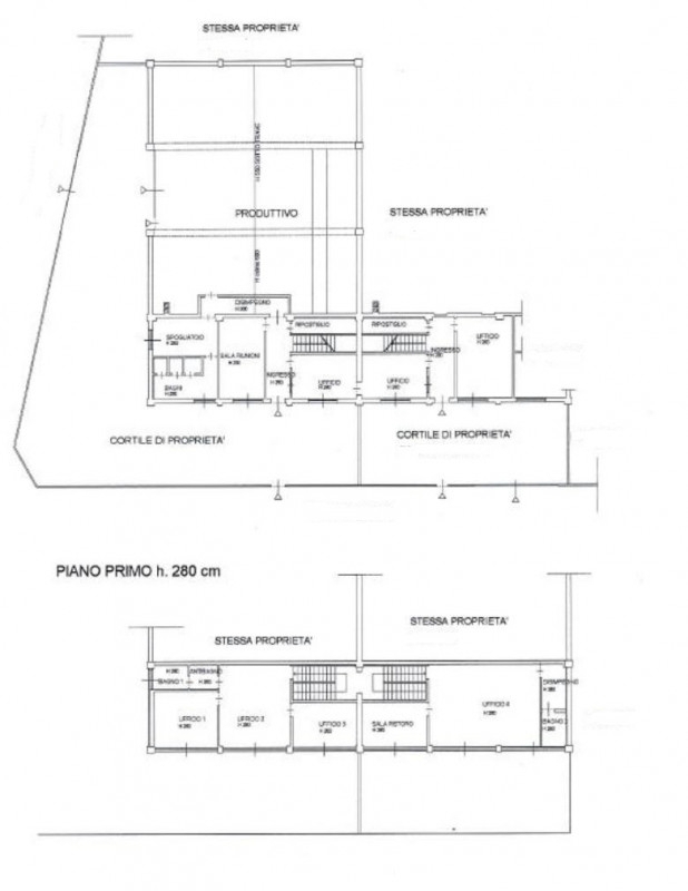
Descrizione:
Affitta a san giuliano milanese, magazzino, mq. 670 ca. Cl. Energetica: g - kwh/mc anno: 150 canone annuo euro. 55.000,00 ( pari a ca. 4.583,00 euro al mese). Riscaldamento e condizionamento autonomi freddo/caldo negli uffici e solo impianto di riscaldamento nel magazzino. L'immobile e' in ordine, gia' libero. Immobile su due piani composto da mq 270 ca ad uso capannone al piano terra e mq 150 ca ad uso uffici , al 1 piano mq 180 ca ad uso uffici.cortile carraio di mq 450 ca (calcolati al 15% ai fini commerciali). rif.: ml818




Caratteristiche immobile:
Codice inserzione: 1758076383
Rif. Annuncio: ML818
Provincia: Milano
Comune: San Giuliano Milanese
Superficie (Mq) : 670 Mq.
Tipo immobile: Negozi uffici capannoni
Stato immobile: usato
Anno costruzione/ristrutturazione: 1983
Piano: Piano terra
Bagni: 3

Costi:
Prezzo € 4.583


Efficienza energetica:
Classe energetica: G
Indice di prestazione energetica (EPgl): 150 kWh/mc annui
Riscaldamento: autonomo