Descrizione:
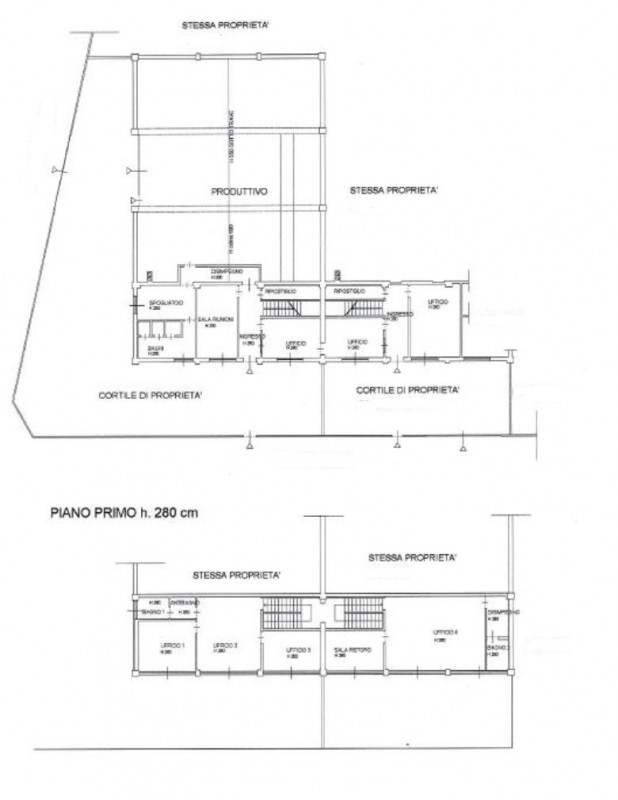
Affitta a san giuliano milanese, laboratorio, mq. 670 ca. Cl. Energetica: g - kwh/mc anno: 150.canone annuo euro. 55.000,00 ( pari a ca. 4.583,00 euro al mese). Riscaldamento e condizionamento autonomi freddo/caldo negli uffici e solo impianto di riscaldamento nel laboratorio. L'immobile e' in ordine, gia' libero. Immobile su due piani composto da mq 270 mq ca. Ad uso laboratorio e mq 150 ca. Ad uso uffici al piano terra piu' mq 180 ca. Di uffici al 1 piano..cortile carraio di mq 450 ca (calcolati al 15% ai fini commerciali). rif.: ml817