home page > Annunci immobiliari in Italia > Lombardia > Milano > Santo Stefano Ticino > Case e ville indipendenti in vendita > Scheda immobile

Case e ville indipendenti in vendita a Santo Stefano Ticino

COMPILA IL MODULO SOTTOSTANTE PER RICEVERE MAGGIORI INFORMAZIONI







Invia la richiesta ad altre agenzie
Accetto il trattamento dei miei dati



Le-ca.se. Sas

Via simone da corbetta,76
20011 Corbetta (MI)

0297271920

Santo Stefano Ticino
Prezzo: € 189.000
A4
70



Descrizione:
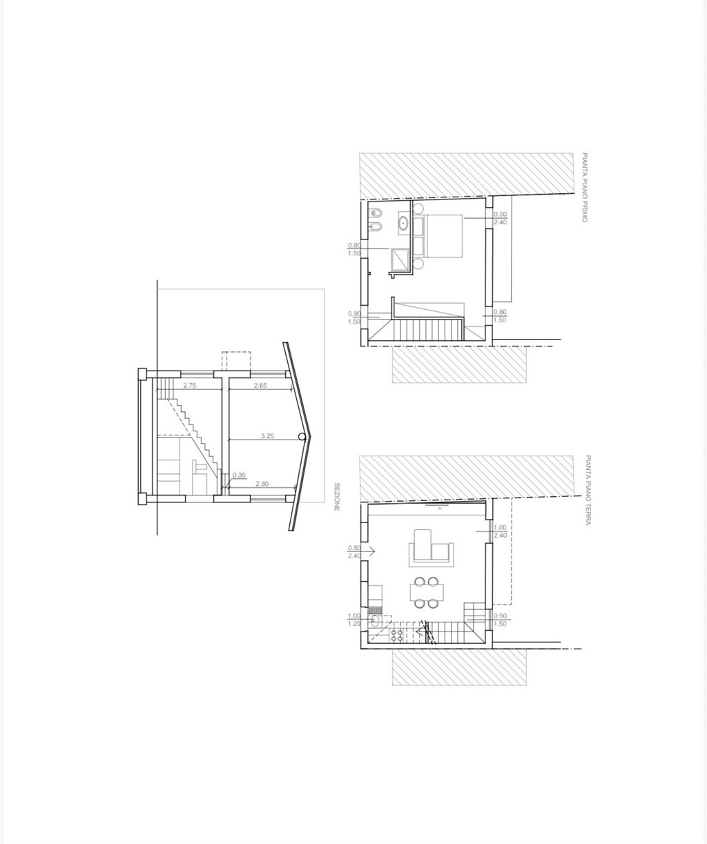
In fase di realizzazione, consegna prevista fine 2026; possibilità di visionare bilocale su due livelli di circa 70 mq commerciali, con giardino privato di 110 mq.l'immobile in fase di completa ristrutturazione, in classe energetica a4, garanzia di elevatissime prestazioni in termini di efficienza e ridotti consumi energetici.prevista installazione di impianto fotovoltaico, pompa di calore e serramenti di ultima generazione.progetto attualmente non definitivo, con possibilità di personalizzazione degli spazi e delle finiture.posto auto nelle immediate vicinanze compreso nel prezzo.le immagini e i render sono puramente indicativi e non rappresentano fedelmente lo stato finale dell'immobile. Non costituiscono elemento contrattuale.maggiori informazioni e dettagli disponibili presso il nostro ufficio rif annuncio 4244




Caratteristiche immobile:
Codice inserzione: 1772600465
Rif. Annuncio: 4244
Provincia: Milano
Comune: Santo Stefano Ticino
Superficie (Mq) : 70 Mq.
Tipo immobile: Case e ville indipendenti

Costi:
Prezzo € 189.000
Spese condominiali: € 0


Efficienza energetica:
Classe energetica: A4