home page > Annunci immobiliari in Italia > Lombardia > Milano > Segrate > Negozi uffici capannoni in affitto > Scheda immobile

Negozi uffici capannoni in affitto a Segrate

COMPILA IL MODULO SOTTOSTANTE PER RICEVERE MAGGIORI INFORMAZIONI







Invia la richiesta ad altre agenzie
Accetto il trattamento dei miei dati



Quimmo agency

Via galileo galilei 6
48018 Faenza (RA)

0299944698

Segrate
Prezzo: € 2.500
3
1736



Descrizione:
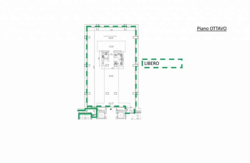
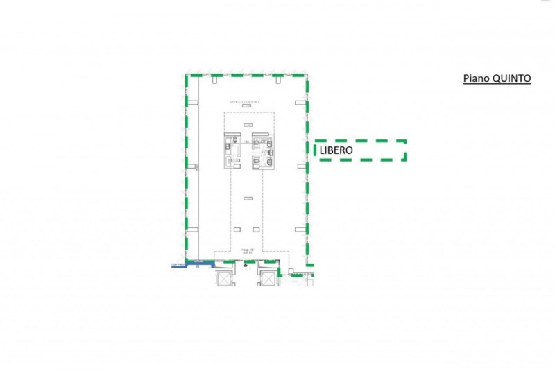
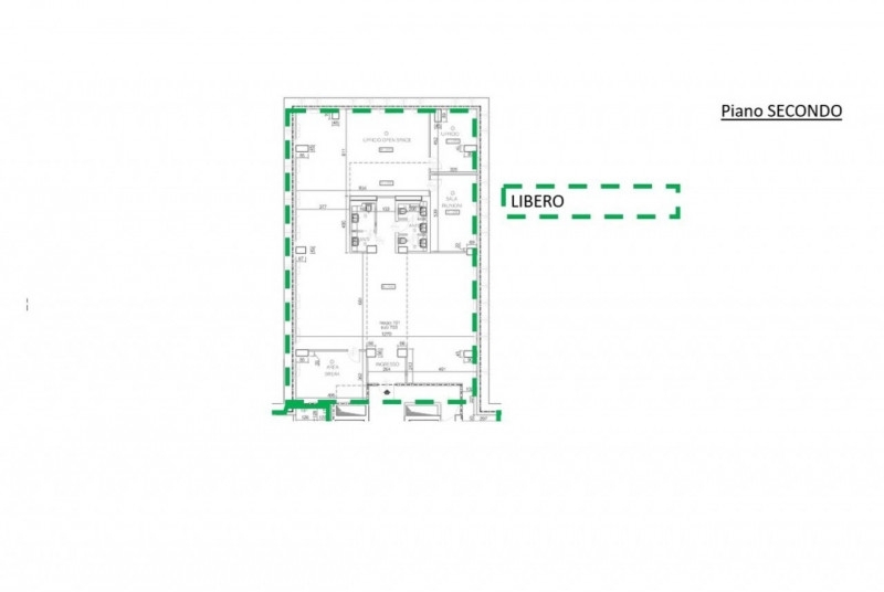
All'interno della palazzina direzionale 'tintoretto', situata nel prestigioso complesso 'milano oltre', proponiamo in locazione un moderno ufficio sviluppato dal secondo all'ottavo piano, per una superficie commerciale complessiva di 1.736 m.l'asset si presenta con ampi spazi open space, facilmente riconfigurabili in base alle esigenze del conduttore e ideali per accogliere team numerosi, funzioni corporate, attività di back-office o soluzioni ibride. I piani sono serviti da ascensori e vani scala interni e godono di ottima luminosità naturale grazie alle ampie superfici vetrate.il complesso 'milano oltre' si trova in una zona strategica di segrate, caratterizzata da edifici direzionali e supportata da una viabilità efficiente, con fermate del trasporto pubblico nelle immediate vicinanze e collegamenti rapidi verso milano.all'interno dell'edificio è inoltre possibile locare ulteriori spazi accessori, quali posti auto in box o in autorimessa e magazzini/depositi, in funzione delle necessità operative dell'utilizzatore. Il contesto direzionale complessivo offre una cornice professionale e ben organizzata, ideale per aziende strutturate e realtà in espansione alla ricerca di un ufficio di ampia metratura, flessibile e pronto all'uso.




Caratteristiche immobile:
Codice inserzione: 1763611373
Rif. Annuncio: 2537636
Provincia: Milano
Comune: Segrate
Superficie (Mq) : 1736 Mq.
Tipo immobile: Negozi uffici capannoni
Stato immobile: usato
Bagni: 3

Costi:
Prezzo € 2.500


Efficienza energetica:
Riscaldamento: centralizzato