Descrizione:
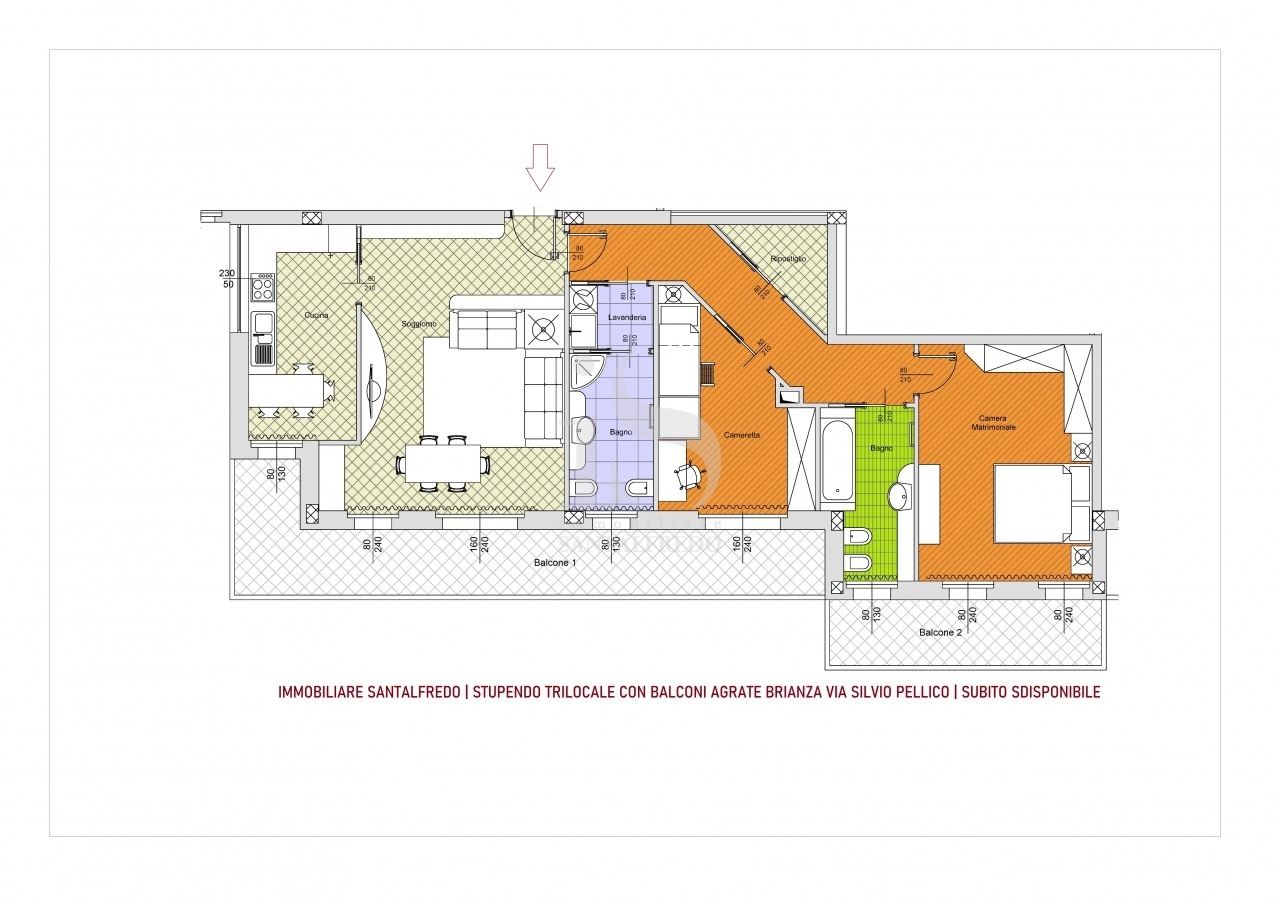
Dedicato a chi cerca un appartamento trilocale decisamente vivibile. Desidero partire dai pregi: - la migliore esposizione: est, dove sorge il sole. - casa di nuova costruzione in classe c - poter personalizzare le finiture interne da un ottimo capitolato. - planimetria dagli ingombri perfetti. Contesto l'appartamento si trova ad agrate brianza in via silvio pellico 6/12 strada a fondo chiuso, garantito dunque uno scarso inquinamento acustico e una piacevole vista su aree verdi. La palazzina è stata edificata nel 2015 prendendo in considerazione molteplici parametri: di armonia, di risparmio energetico, di sicurezza, di sostenibilità ambientale e di comfort. Le tecniche costruttive applicate, garantiscono un ottimo livello di qualità della vita, grazie alla ricerca attiva di materiali e tecnologie sostenibili. Chi decide di acquistare questo immobile, avrà la possibilità di vivere in un edificio di ultima generazione in grado di mantenere il suo valore nel tempo. Come risultato, l'edificio è in classe energetica c. La casa è in pronta consegna, non abbiamo ultimato la posa dei pavimenti e dei rivestimenti per permetterle di personalizzare le finiture in base alla proposta da capitolato. La costruzione ospita 15 appartamenti distribuiti su tre piani fuori terra, oltre a quelli al piano terra con giardino, ed il piano interrato con le cantine ed i garage. Trilocale con balcone trilocale di 114 mq piano primo con ascensore. Porta blindata, accesso diretto al soggiorno dove risaltano due serramenti che, oltre a portare luminosità all' ambiente, permettono l'accesso al bellissimo balcone di 32 mq che abbraccia e circonda tutta la casa. Cucina abitabile attigua al soggiorno, disimpegno che introduce alla zona notte, comoda camera matrimoniale, bagno con lavanderia, seconda camera da letto, secondo bagno, ed utile ripostiglio. Al piano seminterrato la cantina di pertinenza. La richiesta è di 341.000 euro. Le spese condominiali ammontano a 200/mese, comprensive di riscaldamento, ape c 39,64 ci contatti ora per ulteriori informazioni o per richiedere un sopralluogo. Telefono o whatsapp al numero , immobiliare santalfredo. - sc9476354