home page > Annunci immobiliari in Italia > Lombardia > Monza e della Brianza > Agrate Brianza > appartamenti in vendita > Scheda immobile

Appartamento in vendita a Agrate Brianza

COMPILA IL MODULO SOTTOSTANTE PER RICEVERE MAGGIORI INFORMAZIONI







Invia la richiesta ad altre agenzie
Accetto il trattamento dei miei dati



Immobiliare santalfredo

Via remo brambilla 7
20863 Concorezzo (MB)

0396908137    0396908771    Riferimenti: IMMOBILIARE SANTALFREDO

Agrate Brianza
Prezzo: € 341.000
A3
2
2
114
1



Descrizione:
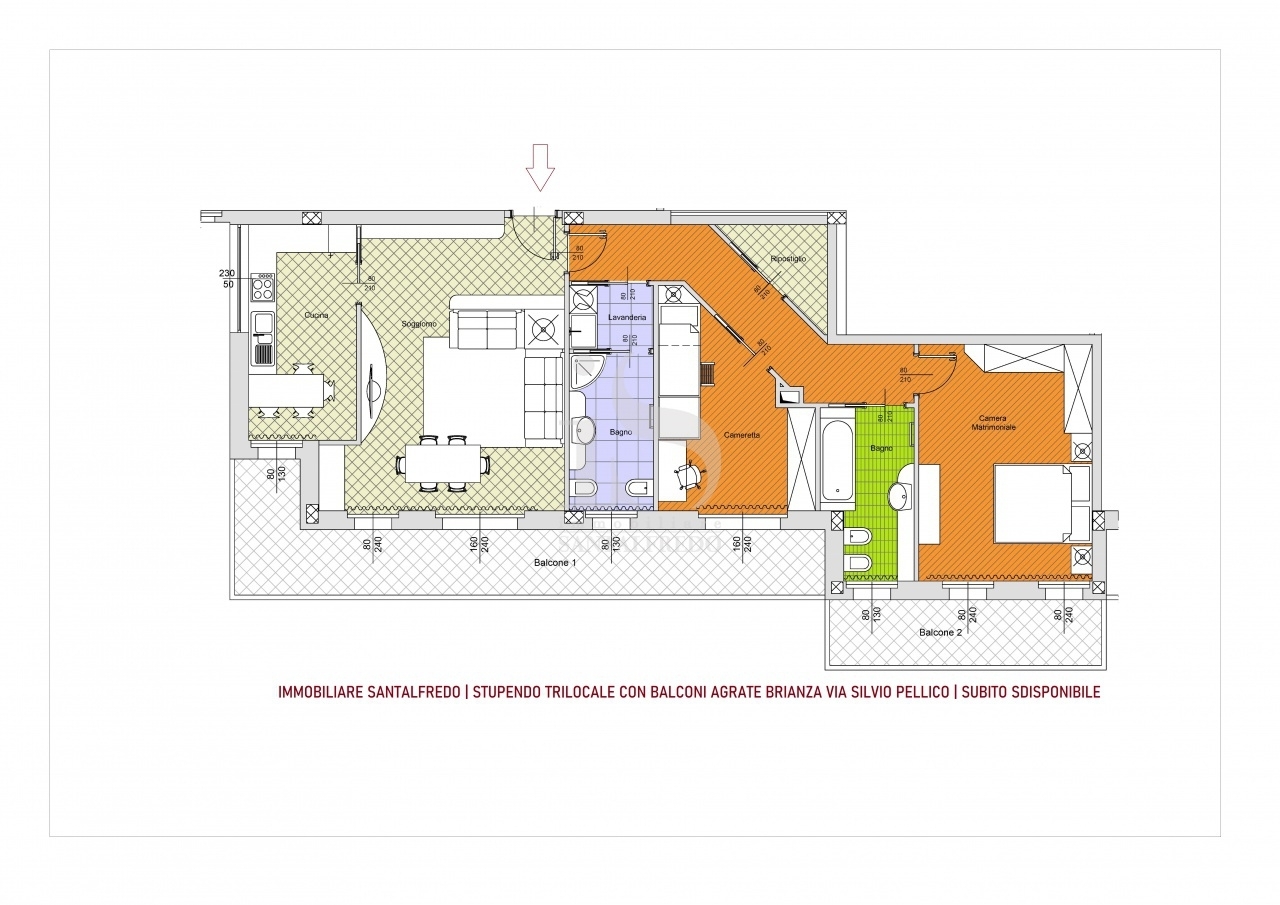
Dedicato a chi cerca un appartamento trilocale decisamente vivibile. desidero partire dai pregi: - la migliore esposizione: est, dove sorge il sole. - casa di nuova costruzione in classe a - poter personalizzare le finiture interne da un ottimo capitolato. - planimetria dagli ingombri perfetti.contesto l'appartamento si trova ad agrate brianza in via silvio pellico 6/12 strada a fondo chiuso, garantito dunque uno scarso inquinamento acustico e una piacevole vista su aree verdi.la palazzina à stata edificata nel 2015 prendendo in considerazione molteplici parametri: di armonia, di risparmio energetico, di sicurezza, di sostenibilità- ambientale e di comfort. Le tecniche costruttive applicate, garantiscono un ottimo livello di qualità- della vita, grazie alla ricerca attiva di materiali e tecnologie sostenibili. Chi decide di acquistare questo immobile, avrà- la possibilità- di vivere in un edificio di ultima generazione in grado di mantenere il suo valore nel tempo. Come risultato, l'edificio à in classe energetica a. la casa à in pronta consegna, non abbiamo ultimato la posa dei pavimenti e dei rivestimenti per permetterle di personalizzare le finiture in base alla proposta da capitolato. la costruzione ospita 15 appartamenti distribuiti su tre piani fuori terra, oltre a quelli al piano terra con giardino, ed il piano interrato con le cantine ed i garage. trilocale con balconetrilocale di 114 mq piano primo con ascensore. porta blindata, accesso diretto al soggiorno dove risaltano due serramenti che, oltre a portare luminosità-- all' ambiente, permettono l'accesso al bellissimo balcone di 32 mq che abbraccia e circonda tutta la casa. cucina abitabile attigua al soggiorno, disimpegno che introduce alla zona notte, comoda camera matrimoniale, bagno con lavanderia, seconda camera da letto, secondo bagno, ed utile ripostiglio. Al piano seminterrato la cantina di pertinenza.la richiesta à di 341.000 euro. Le spese condominiali ammontano a 200/mese, comprensive di riscaldamento, ape a 39,64 ci contatti ora per ulteriori informazioni o per richiedere un sopralluogo. Telefono o whatsapp al numero , immobiliare santalfredo. classe energetica: a3 - ipe: 39.64kwh/mq anno




Caratteristiche immobile:
Codice inserzione: 1765513303
Rif. Annuncio: 12 HOME 3347_3
Provincia: Monza e della Brianza
Comune: Agrate Brianza
Superficie (Mq) : 114 Mq.
Tipo immobile: Appartamento
Stato immobile: nuovo
Piano: 1
Camere: 2
Stato al rogito: Libero
Tipologia giardino : Condominiale
Bagni: 2

Costi:
Prezzo € 341.000
Spese condominiali: € 200


Efficienza energetica:
Classe energetica: A3
Indice di prestazione energetica (EPgl): 39.64 kWh/mq annui
Riscaldamento: centralizzato