home page > Annunci immobiliari in Italia > Lombardia > Monza e della Brianza > Lissone > Negozi uffici capannoni in vendita > Scheda immobile

Negozi uffici capannoni in vendita a Lissone

COMPILA IL MODULO SOTTOSTANTE PER RICEVERE MAGGIORI INFORMAZIONI







Invia la richiesta ad altre agenzie
Accetto il trattamento dei miei dati



Immobiliare lu.re.co.

Via manzoni n.2/b
20900 Monza (MB)

0399157856    3272986328

Lissone
Prezzo: € 190.000
G
1
280



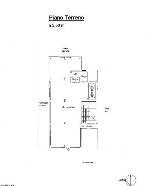
Descrizione:
Immobiliare lu.re.co. Propone in vendita a lissone, in zona commerciale, showroom di 180 mq con possibilità di acquistare a parte un deposito al piano seminterrato di 100mq al prezzo di euro 60.000. l'immobile ad uso commerciale prevede due vetrine su strada, un unico locale open space personalizzabile a proprio piacimento, servizio e doppio ingresso privato al piano terra. inoltre, la soluzione commerciale potrebbe essere interessante data la versatilità dei servizi proponibili. completa la proprietà l'ottima posizione e la presenza delle principali arterie autostradali per il facile collegamento verso le città limitrofe.




Caratteristiche immobile:
Codice inserzione: 1741239747
Rif. Annuncio: 159
Provincia: Monza e della Brianza
Comune: Lissone
Superficie (Mq) : 280 Mq.
Tipo immobile: Negozi uffici capannoni
Stato immobile: usato da riattare
Stato al rogito: Libero
Bagni: 1

Costi:
Prezzo € 190.000


Efficienza energetica:
Classe energetica: G
Indice di prestazione energetica (EPgl): 223.14 kWh/mc annui