home page > Annunci immobiliari in Italia > Lombardia > Monza e della Brianza > Monza > Attività commerciali in vendita > Scheda immobile

Attività commerciali in vendita a Monza

COMPILA IL MODULO SOTTOSTANTE PER RICEVERE MAGGIORI INFORMAZIONI







Invia la richiesta ad altre agenzie
Accetto il trattamento dei miei dati



Bassi immobiliare

Via appiani 25
20900 Monza (MB)

0392315409

Monza
Prezzo: € 1.650.000
2500



Descrizione:
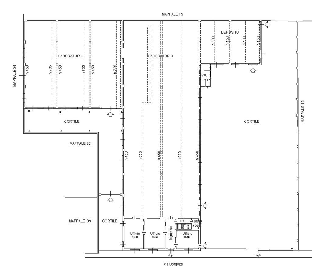
Se sei alla ricerca di un'opportunità di investimento redditizia, non cercare oltre! proponiamo un terreno edificabile di 2.500 mq ca situato in una posizione di forte passaggio a monza, ideale per la realizzazione di un supermercato o altre destinazioni commerciali, direzionali o turistiche.l'area offre una visibilità eccezionale e un accesso logistico ottimale, che la rendono perfetta per soddisfare le esigenze di qualsiasi attività commerciale. Attualmente, sul terreno sono presenti un capannone in buono stato di manutenzione e una palazzina uffici, oltre a un'ampia area scoperta pronta per lo sviluppo.con una superficie commerciale di 1.200 mq e ulteriori 566 mq di magazzino o laboratorio, questa proprietà offre un'ampia flessibilità per la realizzazione di un supermercato o altri progetti commerciali. In alternativa, la destinazione direzionale, terziaria o turistico-ricettiva consente la realizzazione di 1.766 mq di spazi adatti a uffici, servizi o strutture ricettive.non perdere l'opportunità di investire in questa posizione strategica a monza e di sfruttare il suo potenziale di sviluppo. Contattaci oggi stesso per maggiori informazioni e per esplorare le possibilità di questo terreno edificabile unico nel suo genere!'potenziali clienti interessati:investitori immobiliari: gli investitori che cercano opportunità di investimento a lungo termine potrebbero essere interessati a questo terreno edificabile per sviluppare un progetto commerciale redditizio.catene di supermercati: le catene di supermercati o negozi al dettaglio potrebbero essere interessate a espandere la propria presenza a monza e potrebbero vedere questo terreno come una location ideale per un nuovo punto vendita.sviluppatori commerciali: gli sviluppatori che cercano nuove opportunità di sviluppo commerciale potrebbero essere attratti dalla posizione strategica e dalle potenzialità di questo terreno edificabile.aziende direzionali o turistiche: le aziende che cercano spazi per uffici, servizi o strutture ricettive potrebbero considerare questo terreno edificabile per realizzare un nuovo quartier generale, un centro direzionale o una struttura turistico-ricettiva.




Caratteristiche immobile:
Codice inserzione: 1767589572
Rif. Annuncio: 202456
Provincia: Monza e della Brianza
Comune: Monza
Superficie (Mq) : 2500 Mq.
Tipo immobile: Attività commerciali
Tipologia giardino : Privato

Costi:
Prezzo € 1.650.000
Spese condominiali: € 0


Efficienza energetica: