home page > Annunci immobiliari in Italia > Lombardia > Monza e della Brianza > Monza > Case e ville indipendenti in vendita > Scheda immobile

Case e ville indipendenti in vendita a Monza

COMPILA IL MODULO SOTTOSTANTE PER RICEVERE MAGGIORI INFORMAZIONI







Invia la richiesta ad altre agenzie
Accetto il trattamento dei miei dati



Bassi immobiliare investincase srl

Piazza oggioni 1
20852 Villasanta (MB)

0392315409

Monza
Prezzo: € 415.000
E
2
2
296



Descrizione:
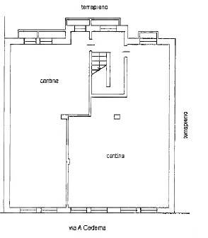
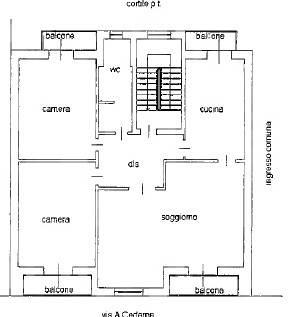
Nella vivace e riqualificata via cederna palazzina indipendente disposta su 2 livelli oltre cantina; al piano terra troviamo un negozio con 2 vetrine e magazzino, al piano primo un appartamento di 130 mq in ottime condizioni composto da un ampio ingresso, salone doppio con camino e balcone, cucina abitabile con secondo balcone, 2 grandi camere di cui una con balcone, un bagno. Completano la proprietà una cantina di 127 mq ed un cortile in cui trovano spazio un posto auto coperto ed uno scoperto. Le condizioni generali della palazzina sono buone, facciata e tetto sono in ottimo stato di manutenzione, cosù come gli impianti. L'intero stabile sarà libero da aprile 2026. Opportunità molto interessante per realizzare un airb&b : infatti con una ristrutturazione si possono ricavare: 2 monolocali e un negozio al pt, 2 bilocali e un monolocale al piano primo, e con la possibilità di recupero del sottotetto altri 2 appartamenti al piano mansardato; la soluzione può essere interessante anche per negozio e abitazione o per un'attività che necessiti di un negozio per il pubblico e un ufficio. Classe energetica: e epi: 120 kwh/m2 anno




Caratteristiche immobile:
Codice inserzione: 1773891192
Rif. Annuncio: 202623
Provincia: Monza e della Brianza
Comune: Monza
Superficie (Mq) : 296 Mq.
Tipo immobile: Case e ville indipendenti
Camere: 2
Bagni: 2

Costi:
Prezzo € 415.000


Efficienza energetica:
Classe energetica: E
Indice di prestazione energetica (EPgl): 120 kWh/mq annui
Riscaldamento: autonomo