home page > Annunci immobiliari in Italia > Lombardia > Monza e della Brianza > Villasanta > appartamenti in vendita > Scheda immobile

Appartamento in vendita a Villasanta

COMPILA IL MODULO SOTTOSTANTE PER RICEVERE MAGGIORI INFORMAZIONI







Invia la richiesta ad altre agenzie
Accetto il trattamento dei miei dati



House & consulting arcore

Via umberto i, 67
20862 Arcore (MB)

0396012742

Villasanta
Prezzo: € 470.000
A2
3
2
139
1



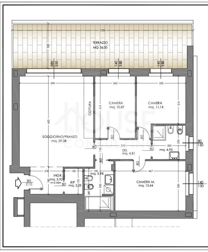
Descrizione:
Residenza le magnolie appartamento rif. 6moderno quadrilocale di 114 mq con terrazzo da 36 mq, situato al piano primo della prestigiosa residenza le magnolie di via doria di villasanta.
un'abitazione moderna e funzionale, caratterizzata da luminosità, finiture di pregio e un elevato comfort abitativo.composizione:- ingresso- ampio soggiorno/pranzo con vetrata scorrevole e accesso diretto al terrazzo- cucina a vista- camera matrimoniale - due camere- due bagni - ripostigliogli interni sono personalizzabili grazie a un capitolato di alta qualità, che prevede materiali ricercati come ceramiche di grandi formati (fino a 90x90 cm)le residenze sono progettate secondo i più moderni standard di efficienza energetica e comfort:- riscaldamento a pavimento autonomo- predisposizione per ventilazione meccanica controllata, condizionamento e deumidificazione- pannelli fotovoltaici- serramenti ad alte prestazioni con tapparelle elettriche e zanzarierecompletano la proprietà una cantina e la possibilità di box singolo o doppio con serranda automatica.per informazioni:
house & consulting arcore tel 
 immagini hanno scopo puramente illustrativo e non costituiscono elemento contrattuale. le misure riportate sono indicative e possono subire variazioni in fase di realizzazione.




Caratteristiche immobile:
Codice inserzione: 1762491847
Rif. Annuncio: 2602
Provincia: Monza e della Brianza
Comune: Villasanta
Superficie (Mq) : 139 Mq.
Tipo immobile: Appartamento
Stato immobile: nuovo
Anno costruzione/ristrutturazione: 2026
Piano: 1
Camere: 3
Bagni: 2
Terrazze: 1

Costi:
Prezzo € 470.000
Spese condominiali: € 0


Efficienza energetica:
Classe energetica: A2
Indice di prestazione energetica (EPgl): 15 kWh/mq annui
Riscaldamento: autonomo