home page > Annunci immobiliari in Italia > Lombardia > Monza e della Brianza > Villasanta > appartamenti in vendita > Scheda immobile

Appartamento in vendita a Villasanta

COMPILA IL MODULO SOTTOSTANTE PER RICEVERE MAGGIORI INFORMAZIONI







Invia la richiesta ad altre agenzie
Accetto il trattamento dei miei dati



House & consulting arcore

Via umberto i, 67
20862 Arcore (MB)

0396012742

Villasanta
Prezzo: € 270.000
A2
1
1
68
2



Descrizione:
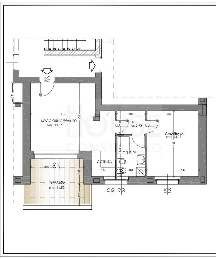
Residenza le magnolie appartamento rif. 14confortevole bilocale di 59 mq con terrazzo di 12 mq, situato al piano secondo della prestigiosa residenza le magnolie di villasanta.
un'abitazione moderna e funzionale, caratterizzata da luminosità, finiture di pregio e un elevato comfort abitativo.composizione:- ingresso- ampio soggiorno/pranzo con vetrata scorrevole e accesso diretto al terrazzo- cucina a vista- camera matrimoniale- bagno finestratogli interni sono personalizzabili grazie a un capitolato di alta qualità, che prevede materiali ricercati come ceramiche di grandi formati (fino a 90x90 cm).le residenze sono progettate secondo i più moderni standard di efficienza energetica e comfort:- riscaldamento a pavimento autonomo- predisposizione per ventilazione meccanica controllata, condizionamento e deumidificazione- pannelli fotovoltaici- serramenti ad alte prestazioni con tapparelle elettriche e zanzarierecompletano la proprietà una cantina e la possibilità di box singolo o doppio con serranda automatica.per informazioni:
house & consulting arcore tel 
 immagini hanno scopo puramente illustrativo e non costituiscono elemento contrattuale.le misure riportate sono indicative e possono subire variazioni in fase di realizzazione.




Caratteristiche immobile:
Codice inserzione: 1762491852
Rif. Annuncio: 2607
Provincia: Monza e della Brianza
Comune: Villasanta
Superficie (Mq) : 68 Mq.
Tipo immobile: Appartamento
Stato immobile: nuovo
Anno costruzione/ristrutturazione: 2026
Piano: 2
Camere: 1
Bagni: 1
Terrazze: 1

Costi:
Prezzo € 270.000
Spese condominiali: € 0


Efficienza energetica:
Classe energetica: A2
Indice di prestazione energetica (EPgl): 15 kWh/mq annui
Riscaldamento: autonomo