home page > Annunci immobiliari in Italia > Lombardia > Pavia > Garlasco > Case e ville indipendenti in vendita > Scheda immobile

Case e ville indipendenti in vendita a Garlasco

COMPILA IL MODULO SOTTOSTANTE PER RICEVERE MAGGIORI INFORMAZIONI







Invia la richiesta ad altre agenzie
Accetto il trattamento dei miei dati



Acquaotta basilia maria

Via giuseppe mazzini, 8
27025 Gambolò (PV)

0381451187

Garlasco
Prezzo: € 470.000
3
143



Descrizione:
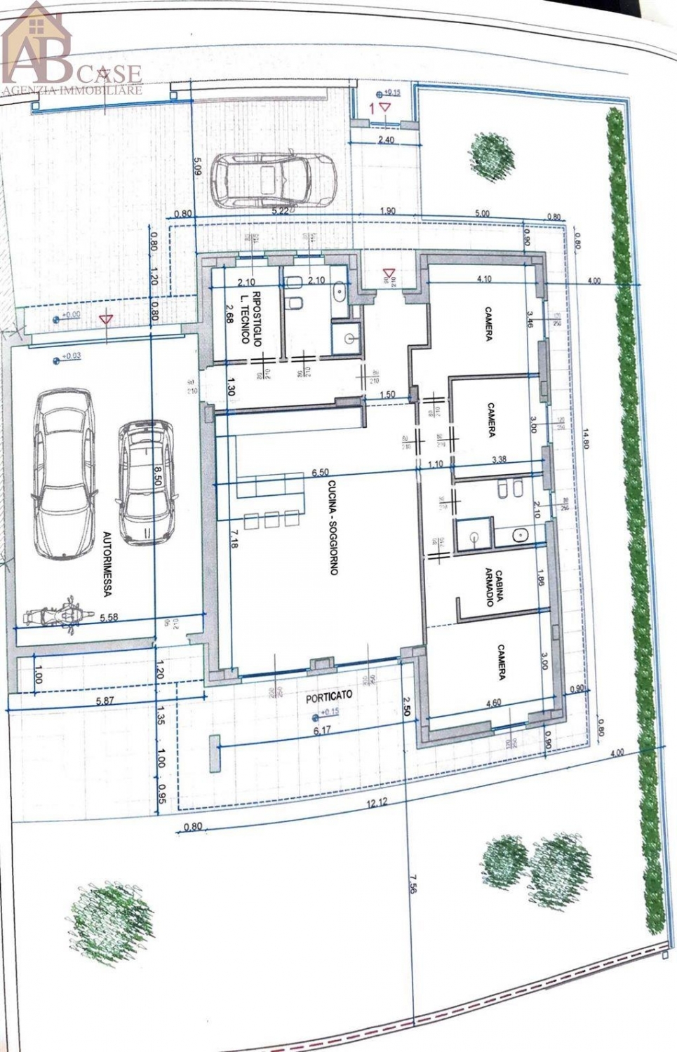
Villa singola in costruzione in piccolo contesto residenziale, vicinissimo a tutti i servizi principali di garlasco con consegna nel 2026, in classe energetica a3, dotata di tutti i confort principali , disposta su un unico piano , composta da : ingresso, soggiorno con cucina a vista, disimpegno, tre camere, due bagni, locale tecnico.porticato e box doppuio.ottimo capitolato!




Caratteristiche immobile:
Codice inserzione: 1761627797
Rif. Annuncio: 2488
Provincia: Pavia
Comune: Garlasco
Superficie (Mq) : 143 Mq.
Tipo immobile: Case e ville indipendenti
Stato immobile: nuovo
Camere: 3
Garage: Doppio

Costi:
Prezzo € 470.000
Spese condominiali: € 0


Efficienza energetica:
Riscaldamento: autonomo
Tipologia riscaldamento: Metano