home page > Annunci immobiliari in Italia > Lombardia > Pavia > Voghera > appartamenti in vendita > Scheda immobile

Appartamento in vendita a Voghera

COMPILA IL MODULO SOTTOSTANTE PER RICEVERE MAGGIORI INFORMAZIONI







Invia la richiesta ad altre agenzie
Accetto il trattamento dei miei dati



Immobili all'asta

Viale sabotino 4
20121 Milano

0280888267    Riferimenti: Ivano De Natale

Voghera
Prezzo: € 77.250
F
2
1
129
1



Descrizione:
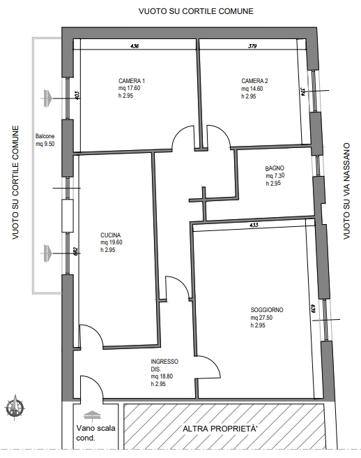
Appartamento all'sta in via lomellina, voghera (pv)si propone il diritto di piena proprietà su immobile ad uso residenziale sito in via lomellina 12, nel comune di voghera (pv).nello specifico si tratta di un appartamento al piano primo, composto da:ingresso su disimpegno, cucina con ampio balcone, corridoio, soggiorno, due camere da letto (di cui una collegata al balcone) e un servizio igienico.accessori- cantina- box.l'unità risulta avere una superficie complessiva di circa 129mq.dati catastalifoglio 48, mappale 1125, subalterno 4, categoria a/3, classe 3, consistenza vani 6, superficie catastale totale 127 mq, superficiecatastale totale escluse aree scoperte 124 mq, rendita catastale € 371,85.chi siamoimmobiliallasta.it aiuta le persone a comprare casa all'asta e migliorare la qualità della loro vita senza correre rischi, grazie ad una piattaforma specializzata in aste immobiliari sviluppata intorno alle vere esigenze di chi cerca casa all'asta e ad un team di 30 professionisti esperti dedicato, che ti guida passo passo in un acquisto sicuro e certificato da una tripla garanzia sull'immobile e sul servizio. a differenza delle agenzie troverai: + varietà: gestiamo migliaia di immobili ogni mese+ aiuto concreto: consulenti focalizzati nell'aiutarti a raggiungere il tuo obiettivo+ tranquillità: tripla garanzia che ti tutela da ogni rischio sull'acquistoalcuni risultati oggettivi nell'ultimo anno e mezzo:- +500 clienti portati all'asta - +200 case aggiudicate, per un valore totale di 15 milioni- +7 milioni risparmiati nell'acquistocontattaci subito per parlare con uno dei nostri consulenti che ti aiuterà a trovare la casa all'asta senza correre rischi.




Caratteristiche immobile:
Codice inserzione: 1770609038
Rif. Annuncio: ST12437
Provincia: Pavia
Comune: Voghera
Superficie (Mq) : 129 Mq.
Tipo immobile: Appartamento
Stato immobile: usato
Anno costruzione/ristrutturazione: 1960
Piano: 1
Camere: 2
Garage: Singolo
Bagni: 1

Costi:
Prezzo € 77.250


Efficienza energetica:
Classe energetica: F
Indice di prestazione energetica (EPgl): 175 kWh/mq annui