home page > Annunci immobiliari in Italia > Lombardia > Varese > Busto Arsizio > appartamenti in affitto > Scheda immobile

Appartamento in affitto a Busto Arsizio

COMPILA IL MODULO SOTTOSTANTE PER RICEVERE MAGGIORI INFORMAZIONI







Invia la richiesta ad altre agenzie
Accetto il trattamento dei miei dati



Everest immobiliare

Piazza giuseppe garibaldi, 1
21052 Busto Arsizio (VA)

3356611560    3356611560    Riferimenti: Geom. Pietro Cappello

Busto Arsizio
Prezzo: € 950
E
1
61



Descrizione:
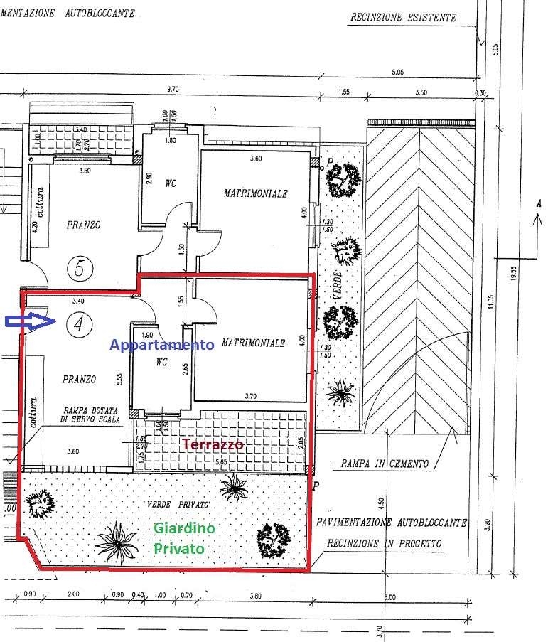
Per questo annuncio rivolgersi al professionista immobiliare geom. Pietro cappello cell ; email arsizio (va). Zona ospedale. Affittasi, tramite contratto transitorio a persone referenziate, in una zona molto tranquilla vicino all'ospedale e in un'ottima e curata palazzina, luminoso e comodo bilocale di 61 mq posto al piano terra e composto da: soggiorno con angolo cottura, camera da letto matrimoniale, disimpegno armadiabile, bagno, terrazzo e un carino giardino privato di pertinenza, attrezzato con rete per animali, dove poter soggiornare. Riscaldamento e produzione acqua calda sanitaria autonomi con caldaia incassata nel muro posta nel balcone. Ottime finiture. Completamente arredato con anche lavastoviglie e materasso. Non disponibile nè di box auto nè di cantina. Canone di locazione comprensivo di spese condominiali. Solo referenziati. Necessari documenti reddituali e motivo locazione. Possibilità di tenere animali domestici tranquilli.per informazioni e appuntamenti contattare geom. Pietro cappello al seguente recapito telefonico cell classe energetica: e 155,56 kwh/m3 a




Caratteristiche immobile:
Codice inserzione: 1762301481
Rif. Annuncio: A000657
Provincia: Varese
Comune: Busto Arsizio
Superficie (Mq) : 61 Mq.
Tipo immobile: Appartamento
Camere: 1

Costi:
Prezzo € 950


Efficienza energetica:
Classe energetica: E
Indice di prestazione energetica (EPgl): 155.56 kWh/mq annui