home page > Annunci immobiliari in Italia > Lombardia > Varese > Gallarate > Negozi uffici capannoni in vendita > Scheda immobile

Negozi uffici capannoni in vendita a Gallarate

COMPILA IL MODULO SOTTOSTANTE PER RICEVERE MAGGIORI INFORMAZIONI







Invia la richiesta ad altre agenzie
Accetto il trattamento dei miei dati



Quimmo agency

Via galileo galilei 6
48018 Faenza (RA)

0299944698

Gallarate
Prezzo: € 100.000
116



Descrizione:
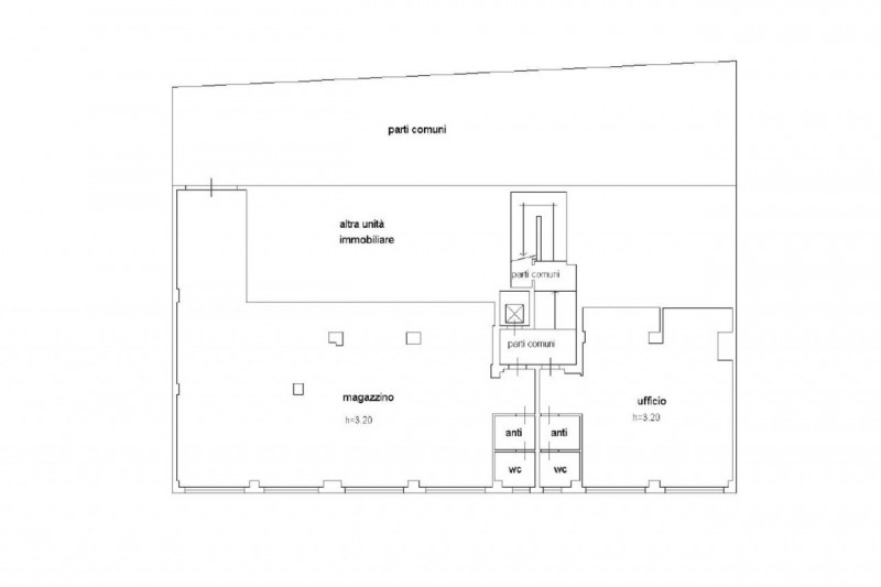
Vendesi ufficio con magazzino a gallarate (va), piazza papa giovanni xxiii, 9. Zona centrale, vicino alla stazione ferroviaria. Le unità risultano posizionate al primo piano interrato di un più ampio complesso immobiliare disposto su n. 7 piani fuori terra e n. 2 piani interrati. L'accesso principale avviene attraverso androne condominiale. Il magazzino dispone anche di accesso carrabile da corte comune al quale si accede tramite rampa carraia. Internamente si compongono da due vani open space, dotati di wc con antibagno. Presente impianto di riscaldamento nell'ufficio; impianto elettrico; luce d'emergenza e attacco autopompa condominiale; ascensore condominiale.si segnala che la proprieta' valuta anche proposte di locazioneanno costruzione: 1958classe energetica: 'f'superficie commerciale: 116 mqsuperficie ufficio: 70 mqsuperficie magazzino: 154 mqpiena proprietà:c/2 (cf): foglio ga/5 particella 1662 subalterno 501a/10 (cf): foglio ga/5 particella 1662 subalterno 502il prezzo è da intendersi iva esclusa (tipicamente aliquota pari al 22%). La proprietà si rende disponibile all'applicazione del reverse charge iva.




Caratteristiche immobile:
Codice inserzione: 1757386833
Rif. Annuncio: 24347
Provincia: Varese
Comune: Gallarate
Superficie (Mq) : 116 Mq.
Tipo immobile: Negozi uffici capannoni
Stato immobile: usato

Costi:
Prezzo € 100.000


Efficienza energetica: