home page > Annunci immobiliari in Italia > Lombardia > Varese > Gallarate > Negozi uffici capannoni in vendita > Scheda immobile

Negozi uffici capannoni in vendita a Gallarate

COMPILA IL MODULO SOTTOSTANTE PER RICEVERE MAGGIORI INFORMAZIONI







Invia la richiesta ad altre agenzie
Accetto il trattamento dei miei dati



Testa srl

Piazza giuseppe garibaldi, 5
21013 Gallarate (VA)

0331796942    0331773159

Gallarate
Prezzo: € 1.100.000
5
860
Ultimo piano



Descrizione:
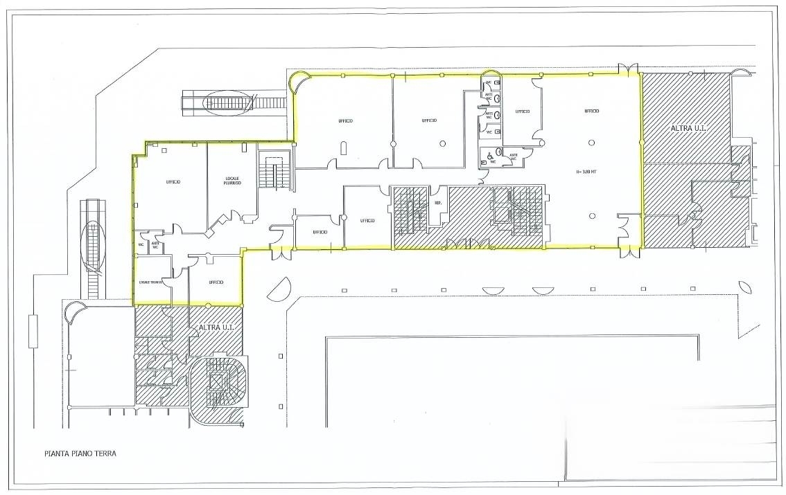
Proponiamo in vendita importante superficie direzionale/commerciale di circa 658 mq al piano terra, oltre a ulteriori 202 mq al piano interrato, direttamente collegato e anch'esso dotato di ingressi indipendenti.una soluzione di grande rappresentanza, ideale per aziende strutturate o investitori alla ricerca di un asset solido e performante.caratteristiche principali:superficie complessiva di oltre 850 mq. - 11 ambienti di diverse metrature, facilmente modulabili - servizi completi, inclusi servizi per disabili - più accessi indipendenti per massima flessibilità operativa.location strategica: a ridosso dell'autostrada milano-laghi, vicino alla stazione ferroviaria e a pochi minuti dal centro città, tutti facilmente raggiungibili anche a piedi.inserito in un complesso direzionale/commerciale ad alta frequentazione, con presenza di bar e ristoranti interni, ideale per dipendenti e clientela; ampi spazi a parcheggi pubblici. Possibilità di posti auto privati.investimento sicuro e immediatamente produttivo: l'immobile è attualmente locato a società affidabile e consolidata, garantendo continuità nei pagamenti e ottima redditività.un'opportunità di valore per chi cerca metrature importanti, posizione e rendimento. Classe energetica: a3




Caratteristiche immobile:
Codice inserzione: 1773893496
Rif. Annuncio: 7949CA38570
Provincia: Varese
Comune: Gallarate
Superficie (Mq) : 860 Mq.
Tipo immobile: Negozi uffici capannoni
Stato immobile: usato
Piano: Ultimo piano
Bagni: 5

Costi:
Prezzo € 1.100.000


Efficienza energetica:
Riscaldamento: centralizzato