home page > Annunci immobiliari in Italia > Lombardia > Varese > Marnate > Negozi uffici capannoni in vendita > Scheda immobile

Negozi uffici capannoni in vendita a Marnate

COMPILA IL MODULO SOTTOSTANTE PER RICEVERE MAGGIORI INFORMAZIONI







Invia la richiesta ad altre agenzie
Accetto il trattamento dei miei dati



Quimmo agency

Via galileo galilei 6
48018 Faenza (RA)

0299944698

Marnate
Prezzo: € 208.000
D
3
299



Descrizione:
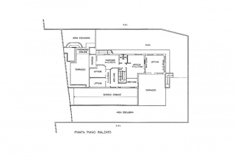
In zona centrale proponiamo in vendita immobile attualmente in uso ufficio/direzionale che visto il contesto potrebbe essere trasformato in residenziale. L'unità immobiliare in vendita è composta al piano rialzata da un ingresso, quattro uffici, un archivio, un ripostiglio, due servizi igienici con antibagno, e due ampi terrazzi ed un portico. Tramite una scala interna si accede al piano interrato che è composto da un ampio locale magazzino/disimpegno, altri due locali magazzino, due w.c. Con antibagno ed un locale caldaia. Dotato di impianto elettrico, termoidraulico con riscaldamento, i serramenti perimetrali sono realizzati in profilati di alluminio /legno con serrande in ferro sul fronte principale. Completano la proprietà due aree esterne pavimentate e un ampio giardino.il bene è situato a cinque minuti d'auto dall'autostrada dei laghi, per collegamenti con milano, varese e la svizzera.superficie lorda uffici: 184,00 mqsuperficie lorda magazzino: 154,00 mqsuperficie lorda terrazzo e portico: 114,00 mqsuperficie area esterna: 213,00 mqclasse energetica: 'd'indice di prestazione energetica 243.04 kwh/mq anno




Caratteristiche immobile:
Codice inserzione: 1757386743
Rif. Annuncio: 24729
Provincia: Varese
Comune: Marnate
Superficie (Mq) : 299 Mq.
Tipo immobile: Negozi uffici capannoni
Stato immobile: usato
Bagni: 3

Costi:
Prezzo € 208.000


Efficienza energetica:
Classe energetica: D