home page > Annunci immobiliari in Italia > Lombardia > Varese > Origgio > appartamenti in vendita > Scheda immobile

Appartamento in vendita a Origgio

COMPILA IL MODULO SOTTOSTANTE PER RICEVERE MAGGIORI INFORMAZIONI







Invia la richiesta ad altre agenzie
Accetto il trattamento dei miei dati



Royal immobiliare di geom. Leo pasquale

Via san michele, 13
20015 Parabiago (MI)

03311977365

Origgio
Prezzo: € 299.000
A1
2
2
88



Descrizione:
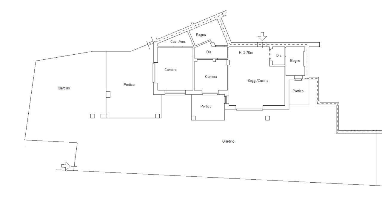
L'abitazione è posta in una signorile palazzina, dalla finiture ricercate e ricca di verde, ubicata in una bellissima zona residenziale di ultima realizzazione, tranquilla e comoda per l'ingresso autostradale o gli spostamenti con i paesi limitrofi, potendo sfruttare le vicine vie principali di collegamento! all'appartamento si accede a piedi percorrendo un gradevole vialetto condominiale, oppure direttamente dal piano garage, utilizzando il vano scala / ascensore se si parcheggia nell'autorimessa di proprietà. La casa è suddivisa in ingresso su zona living soggiorno con cucina, disimpegno con ripostiglio, doppi servizi, camera singola e camera matrimoniale con cabina armadio. L'area esterna di proprietà la fa da padrona con il giardino di ben 215 mq, dotato di ingresso di servizio indipendente da strada e porticati di ulteriori 40 mq, il tutto circonda l'appartamento che può quindi godere di ampi spazi dove potersi rilassare oppure trascorrere momenti di convivialità nella bella stagione. L'abitazione è dotata di riscaldamento a pavimento, ventilazione meccanica controllata, impianto di irrigazione, smart domotica per gestione luci e tapparelle, zanzariere, impianto di climatizzazione con pompa di calore posto nella zona living e nella camera matrimoniale (quella singola è comunque accessoriata di predisposizione), predisposizione impianto di allarme, oltre impianto fotovoltaico condominiale. Presente box singolo di generosa metratura, posto auto di proprietà e cantina. - maggiori dettagli: climatizzato, porta blindata




Caratteristiche immobile:
Codice inserzione: 1759370466
Rif. Annuncio: OR-301
Provincia: Varese
Comune: Origgio
Superficie (Mq) : 88 Mq.
Tipo immobile: Appartamento
Stato immobile: usato
Camere: 2
Bagni: 2

Costi:
Prezzo € 299.000


Efficienza energetica:
Classe energetica: A1
Riscaldamento: autonomo
Tipologia riscaldamento: gas