Descrizione:
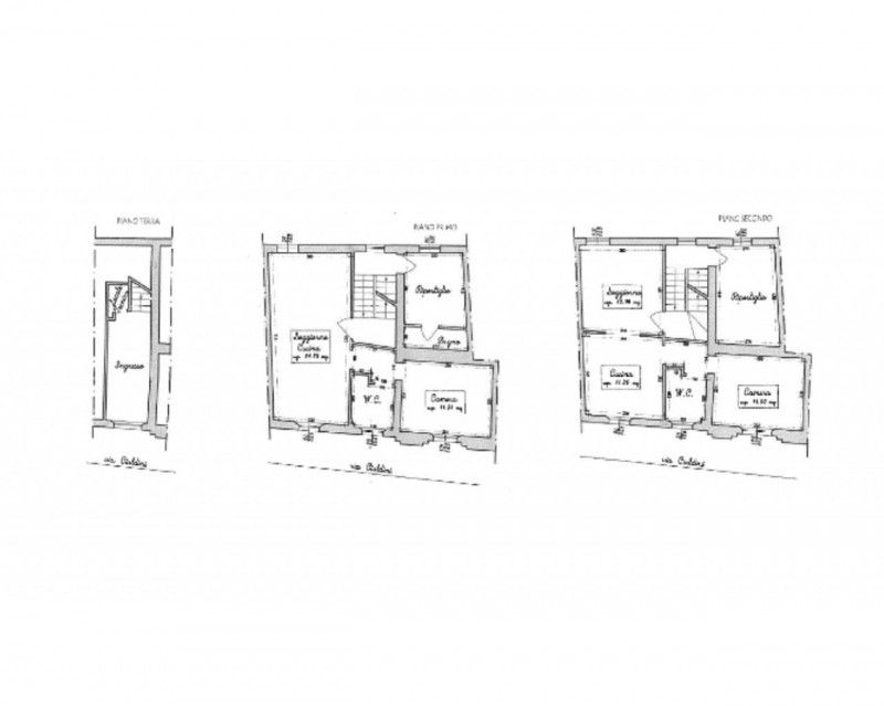
In vendita ampio appartamento nel centro di fabriano (an), in via cialdini n. 172, situato all'interno di un edificio storico che si sviluppa su tre piani fuori terra e due piani ammezzati.l'immobile, con una superficie lorda di circa 140 mq, è caratterizzato da ambienti spaziosi e una distribuzione interna articolata su più livelli. Al piano terra si trova l'ingresso con un comodo ripostiglio. Al primo piano si sviluppa una zona giorno con soggiorno, bagno, una camera matrimoniale e un ulteriore vano utilizzabile come studio o seconda camera. Al secondo piano sono presenti un ulteriore soggiorno, cucina abitabile, bagno, camera matrimoniale e studio.l'abitazione si presta a essere suddivisa anche in due unità indipendenti o mantenuta come unica residenza di ampia metratura, ideale per famiglie numerose o per chi desidera spazi versatili in pieno centro cittadino. Ottima posizione, a pochi passi dai principali servizi e dalle vie pedonali del centro storico di fabriano.