home page > Annunci immobiliari in Italia > Marche > Ancona > Jesi > Case e ville indipendenti in vendita > Scheda immobile

Case e ville indipendenti in vendita a Jesi

COMPILA IL MODULO SOTTOSTANTE PER RICEVERE MAGGIORI INFORMAZIONI







Invia la richiesta ad altre agenzie
Accetto il trattamento dei miei dati



2f agenzia immobiliare sas di fiordelmondo paolo e c.

Via matteo ibriani, 10c
60035 Jesi (AN)

0731207372    0731207372

Jesi
Prezzo: € 168.000
G
6
3
372



Descrizione:
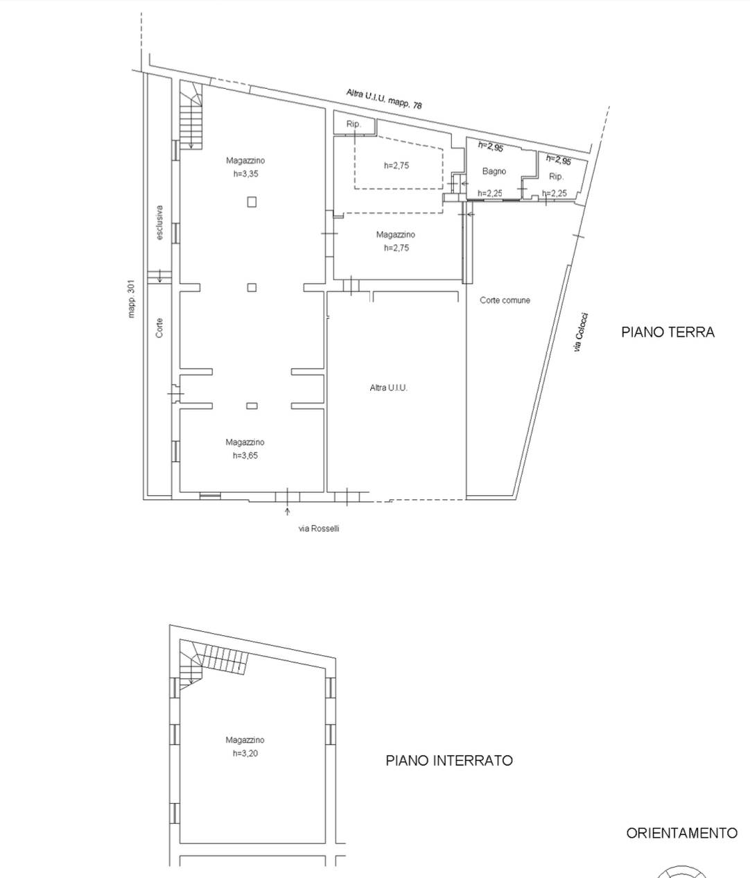
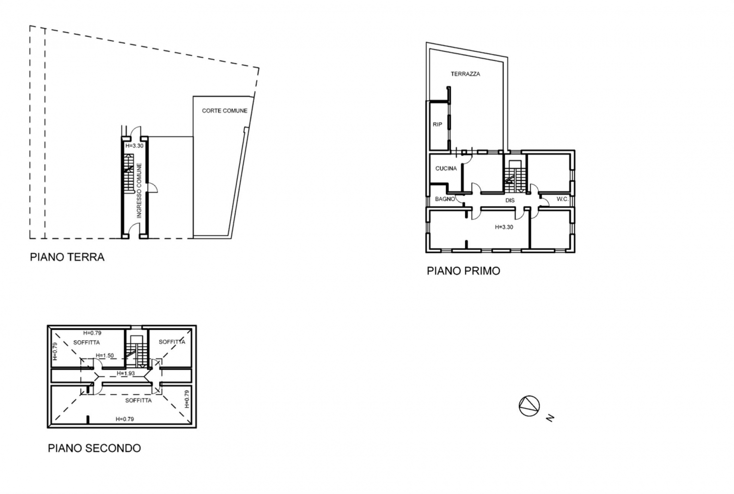
In zona altamente servita, proponiamo in vendita casa singola avente 2 appartamenti, 1 magazzino con corte esclusiva comune ai 3 subalterni. Facilmente gestibile come unica proprietà, anche con fusione catastale se necessario. Perfetta per un nucleo familiare numeroso o per genitori - figli. La posizione a ridosso del centro storico e alle vie ingresso e di uscita dalla città, la rende particolarmente interessante anche per realizzare struttura ricettiva di affitta camere o b&b. Sfruttando sia la corte al piano terra sia l'ampia terrazza del piano primo lato soggiorno. Gli accessori esterni si prestano ottimamente per spazi ricreativi, colazione, aperitivi e cene all'aperto.la casa in parte abitabile, necessita di ristrutturazione. Gli ambienti sono ampi e luminosi, con a disposizione una bella corte che si sviluppa su 2 lati della casa, cantine ampie, alte e ben areate, con volte in mattoni e muratura. Disponibilità immediata. classe energetica: g epi: 880 kwh/m2 anno




Caratteristiche immobile:
Codice inserzione: 1758077431
Rif. Annuncio: JEROSSBRANCH
Provincia: Ancona
Comune: Jesi
Superficie (Mq) : 372 Mq.
Tipo immobile: Case e ville indipendenti
Stato immobile: usato da riattare
Camere: 6
Bagni: 3
Terrazze: 1

Costi:
Prezzo € 168.000


Efficienza energetica:
Classe energetica: G
Indice di prestazione energetica (EPgl): 880 kWh/mq annui
Riscaldamento: autonomo