home page > Annunci immobiliari in Italia > Marche > Ancona > Jesi > Negozi uffici capannoni in vendita > Scheda immobile

Negozi uffici capannoni in vendita a Jesi

COMPILA IL MODULO SOTTOSTANTE PER RICEVERE MAGGIORI INFORMAZIONI







Invia la richiesta ad altre agenzie
Accetto il trattamento dei miei dati



2f agenzia immobiliare sas di fiordelmondo paolo e c.

Via matteo ibriani, 10c
60035 Jesi (AN)

0731207372    0731207372

Jesi
Prezzo: € 580.000
G
6
1620
Ultimo piano



Descrizione:
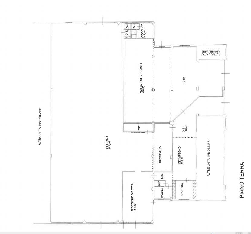
Nella zona industriale di jesi, a poca distanza dall'ingresso jesi est della ss 76, proponiamo in vendita un fabbricato composto da più unità immobiliari tutte affittatate a tre diversi conduttori, per un canone complessivo di circa 5000,00 eu. Mensili.il fabbricato in buone condizioni di uso e manutenzione, dispone di un laboratorio artigiano al piano terra per complessivi 750 mq, un ufficio di circa 50 mq, un negozio di altri 50 mq e magazzino per circa 150 mq. Al piano primo offre un laboratorio artigiano e un mini appartamento, al piano secondo un grande appartamento. Il piazzale ad uso esclusivo del complesso è di circa 2000 mqil complesso si offre ad uso investimento nell'immediato con la possibilità di utilizzo imprenditoriale diretto alla scadenza dei singoli contratti di locazione. Posizione ottima ad angolo su 2 vie principali della z.i.p.a , doppio ingresso carrabile, doppio ingresso ai piani superiori, lotto totalmente recintato. per dettagli fissare appunatemnto. classe energetica: g epi: 900 kwh/m3 anno




Caratteristiche immobile:
Codice inserzione: 1769744896
Rif. Annuncio: JEDONCAPPFED
Provincia: Ancona
Comune: Jesi
Superficie (Mq) : 1620 Mq.
Tipo immobile: Negozi uffici capannoni
Piano: Ultimo piano
Arredato:
Bagni: 6

Costi:
Prezzo € 580.000


Efficienza energetica:
Classe energetica: G
Indice di prestazione energetica (EPgl): 900 kWh/mc annui
Riscaldamento: autonomo