home page > Annunci immobiliari in Italia > Marche > Ancona > Monte San Vito > Garage in vendita > Scheda immobile

Garage in vendita a Monte San Vito

COMPILA IL MODULO SOTTOSTANTE PER RICEVERE MAGGIORI INFORMAZIONI







Invia la richiesta ad altre agenzie
Accetto il trattamento dei miei dati



Abilio s.p.a.

Via galileo galilei 6
48018 Faenza (RA)

0289741561    0546046748    0546046747    Riferimenti: Abilio S.p.A.

Monte San Vito
Prezzo: € 8.798
1
1
40



Descrizione:
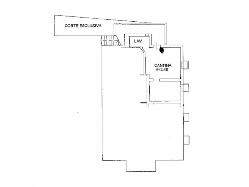
Quest'immobile viene venduto tramite asta online.cantina e area urbana site a monte san vito (an), in via traversa.i beni sono ricompresi all'interno di un complesso residenziale, l'edificio è composto da tre piani fuori terra ed un piano seminterrato.trattasi di locale cantina dotato di lavanderia con corte esclusiva e rampa di accesso.il bene risulta non conforme, è presente una tramezzatura interna con apertura che divide l'ambiente, un bagno e una cucina.per maggiori informazioni vedasi documentazione allegata.immobile descritto in perizia allegata come 'lotto 5'.offerta minima: 8798 euro.quimmo.it: iniziativa tech del gruppo illimity specializzata nell'intermediazione digitale di beni immobili provenienti da tribunali, nuovi sviluppi immobiliari, financial institutions e libero mercato.da oltre 10 anni quimmo.it è il portale specializzato nella compravendita di immobili tramite asta giudiziaria. Il portale è infatti iscritto nel registro gestori della vendita telematica e nell'elenco dei siti web autorizzati allo svolgimento della pubblicità legale. Con quimmo puoi scegliere tra migliaia di immobili di ogni tipo e partecipare alle aste online per acquistare la soluzione più adatta alle tue esigenze.affidati all'esperienza decennale dei nostri esperti e richiedi l'assistenza gratuita per la presentazione e compilazione dell'offerta.contattaci subito.




Caratteristiche immobile:
Codice inserzione: 1760583070
Rif. Annuncio: 2536196
Provincia: Ancona
Comune: Monte San Vito
Superficie (Mq) : 40 Mq.
Tipo immobile: Garage
Stato immobile: usato
Camere: 1
Bagni: 1

Costi:
Prezzo € 8.798


Efficienza energetica: