home page > Annunci immobiliari in Italia > Marche > Ancona > Senigallia > Case e ville indipendenti in vendita > Scheda immobile

Case e ville indipendenti in vendita a Senigallia

COMPILA IL MODULO SOTTOSTANTE PER RICEVERE MAGGIORI INFORMAZIONI







Invia la richiesta ad altre agenzie
Accetto il trattamento dei miei dati



La residente

Via sanzio 42
60019 Senigallia (AN)

07165151    Riferimenti: Sanchioni Michael

Senigallia
Prezzo: € 490.000
A4
3
2
98
Piano terra



Descrizione:
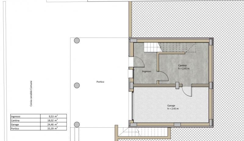
Marzocca, nuova lottizzazione. Vendesi villa monofamiliare al piano terra, di circa 98 mq. Composta da: ingresso, ampio soggiorno con cucina a vista, tre camere, due bagni con finestra, corte esclusiva di 125 mq, taverna di 27 mq collegata con scala interna al piano seminterrato e infine garage di 24 mq. Completa la proprietà un portico esclusivo di circa 33 mq. Ottimo capitolato.




Caratteristiche immobile:
Codice inserzione: 1767067514
Rif. Annuncio: 4095
Provincia: Ancona
Comune: Senigallia
Zona: Marzocca  
Superficie (Mq) : 98 Mq.
Tipo immobile: Case e ville indipendenti
Stato immobile: nuovo
Anno costruzione/ristrutturazione: 2026
Piano: Piano terra
Camere: 3
Garage: Singolo
Bagni: 2

Costi:
Prezzo € 490.000


Efficienza energetica:
Classe energetica: A4