home page > Annunci immobiliari in Italia > Marche > Ascoli Piceno > Acquaviva Picena > Negozi uffici capannoni in vendita > Scheda immobile

Negozi uffici capannoni in vendita a Acquaviva Picena

COMPILA IL MODULO SOTTOSTANTE PER RICEVERE MAGGIORI INFORMAZIONI







Invia la richiesta ad altre agenzie
Accetto il trattamento dei miei dati



Quimmo agency

Via galileo galilei 6
48018 Faenza (RA)

0299944698

Acquaviva Picena
Prezzo: € 448.000
2311



Descrizione:
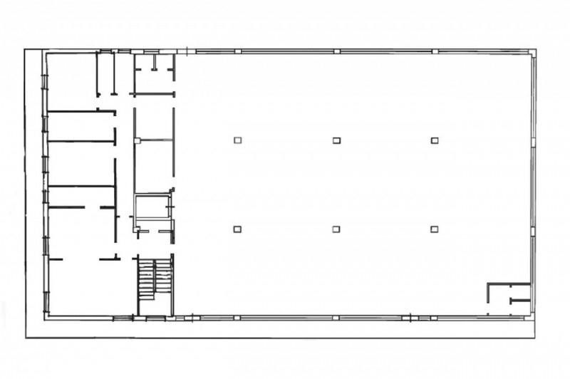
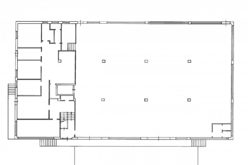
Vendesi edificio artigianale con alloggio custode sito ad acquaviva picena (ap), via enrico fermi 8-10. Il contesto è di prima periferia, tranquillo e poco trafficato. La zona è urbanizzata e ben collegata al centro del paese, a san benedetto del tronto spostandosi verso il mare, e alla autostrada a14 (casello grottammare). Area caratterizzata da edifici per attività artigianali e commerciali. Le unità sono parte di un più grande edificio a blocco realizzato nel 1985 su quattro livelli di cui uno seminterrato. Struttura in cemento armato in opera, solai in laterocemento, tamponamenti in laterizio e copertura a falde. Trattasi di due laboratori ai piani terra e primo, con servizi, uffici, tettoia e alloggio custode. Inclusi locale di sgombero, depositi e terrazzini al piano secondo sottotetto. Vano scala e montacarichi. Finiture e impianti adatti alle attività artigianali. Infissi in alluminio e vetro. Portoni in lamiera. Necessario intervento di manutenzione. Corte condominiale recintata, con doppio accesso carrabile. Immobile libero. Condizioni discrete. Presente all'interno materiale di vario genere.per maggiori dettagli consultare i documenti allegati.ape in corso di definizionesuperficie commerciale: 2311 mqpiena proprietà di:stabilimento (cf): foglio 6 particella 399 subalterno 16 d/7appartamento (cf): foglio 6 particella 399 subalterno 3 a/2




Caratteristiche immobile:
Codice inserzione: 1764216814
Rif. Annuncio: 14874
Provincia: Ascoli Piceno
Comune: Acquaviva Picena
Superficie (Mq) : 2311 Mq.
Tipo immobile: Negozi uffici capannoni
Stato immobile: usato
Anno costruzione/ristrutturazione: 1985

Costi:
Prezzo € 448.000


Efficienza energetica:
Riscaldamento: autonomo