home page > Annunci immobiliari in Italia > Marche > Macerata > Appignano > Case e ville a schiera in vendita > Scheda immobile

Case e ville a schiera in vendita a Appignano

COMPILA IL MODULO SOTTOSTANTE PER RICEVERE MAGGIORI INFORMAZIONI







Invia la richiesta ad altre agenzie
Accetto il trattamento dei miei dati



Abilio s.p.a.

Via galileo galilei 6
48018 Faenza (RA)

0289741561    0546046748    0546046747    Riferimenti: Abilio S.p.A.

Appignano
Prezzo: € 188.957
G
3
3
367



Descrizione:
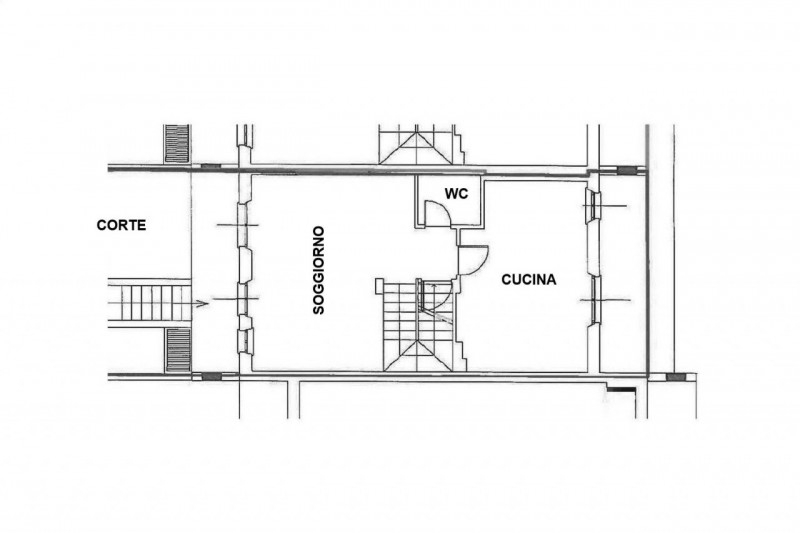
Quest'immobile viene venduto tramite asta online.casa a schiera sita ad appignano (mc), via gino bartali 3 angolo via fausto coppi. Il contesto è periferico e poco trafficato. La zona è collinare, urbanizzata, ben servita e attrezzata per la residenzialità, oltre a botteghe, impianti sportivi e lotti edificabili. L'area è ben collegata al vicino centro storico, oltre che a macerata ed ancona, spostandosi verso il mare. L'unità è parte di un complesso residenziale a schiera realizzato nel 2007. Strutture portanti in cemento armato e rivestimenti esterni faccia vista. Agibilità rilasciata.abitazione (subalterno 40) su quattro piani, con accessi autonomi da rampa carrabile e giardino.piano terra con soggiorno, cucina e bagno. Piano primo con tre camere, bagno e due aggetti.piano mansarda con studio, wc e terrazzino. Seminterrato con garage, tavernetta e wc.finiture standard complete. Impianti sottotraccia. Climatizzazione autonoma.progetto conforme. Per maggiori dettagli consultare la perizia.condizioni buone. Beni mobili e arredi esclusi dalla venditasuperficie complessiva: 367 mq circaimmobile descritto nella perizia qui allegata come lotto 74piena proprietà di:cf: foglio 21 particella 446 subalterno 40 a/3cf: foglio 21 particella 446 subalterno 34 c/6quimmo.it: iniziativa tech del gruppo illimity specializzata nell'intermediazione digitale di beni immobili provenienti da tribunali, nuovi sviluppi immobiliari, financial institutions e libero mercato.da oltre 10 anni quimmo.it è il portale specializzato nella compravendita di immobili tramite asta giudiziaria. Il portale è infatti iscritto nel registro gestori della vendita telematica e nell'elenco dei siti web autorizzati allo svolgimento della pubblicità legale. Con quimmo puoi scegliere tra migliaia di immobili di ogni tipo e partecipare alle aste online per acquistare la soluzione più adatta alle tue esigenze.affidati all'esperienza decennale dei nostri esperti e richiedi l'assistenza gratuita per la presentazione e compilazione dell'offerta.contattaci subito.




Caratteristiche immobile:
Codice inserzione: 1763437771
Rif. Annuncio: 2515141
Provincia: Macerata
Comune: Appignano
Superficie (Mq) : 367 Mq.
Tipo immobile: Case e ville a schiera
Stato immobile: usato
Anno costruzione/ristrutturazione: 2007
Camere: 3
Bagni: 3

Costi:
Prezzo € 188.957


Efficienza energetica:
Classe energetica: G
Riscaldamento: autonomo a pavimento