home page > Annunci immobiliari in Italia > Marche > Macerata > Civitanova Marche > Negozi uffici capannoni in vendita > Scheda immobile

Negozi uffici capannoni in vendita a Civitanova Marche

COMPILA IL MODULO SOTTOSTANTE PER RICEVERE MAGGIORI INFORMAZIONI







Invia la richiesta ad altre agenzie
Accetto il trattamento dei miei dati



Quimmo agency

Via galileo galilei 6
48018 Faenza (RA)

0299944698

Civitanova Marche
Prezzo: € 126.500
D
174



Descrizione:
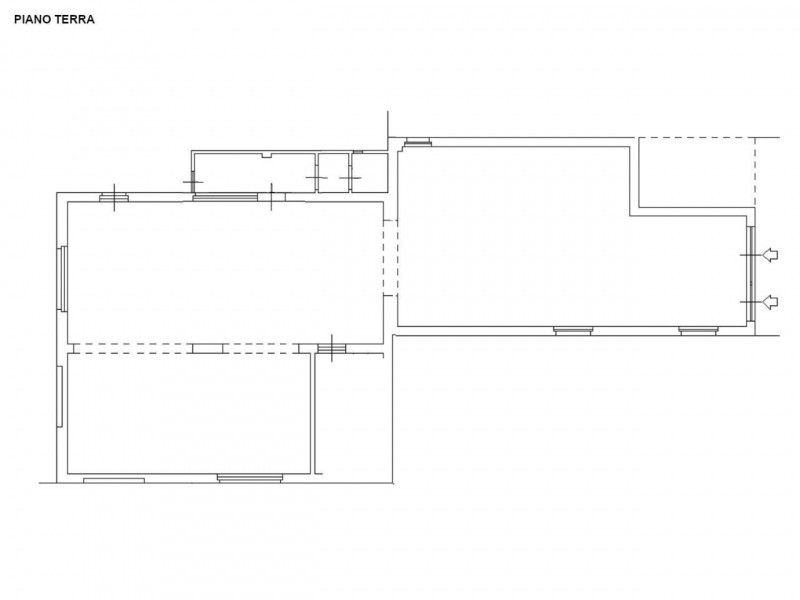
Vendesi laboratorio artigianale e magazzino siti a civitanova marche (mc), strada martiri di belfiore 71. Zona semicentrale, a prevalente destinazione residenziale con vari insediamenti terziario e commerciali. Collocata a sud del comune, posta all'inizio della zona industriale e commerciale, distante a meno di 1 km dall'autostrada a/14 e circa 30 km dal capoluogo di provincia. L'immobile è costituito da tre unità immobiliari, catastalmente distinte, comunicanti tra loro, a destinazione commerciale/artigianale. Esso è situato al piano terreno di un fabbricato edificato alla fine degli anni '50 a due livelli fuori terra. La struttura dell'edificio è in c.a. Gettato in opera; il solaio interpiano è in laterocemento, il solaio di copertura risulta essere in parte a falde ed in parte a lastrico solare; le tamponature esterne ed interne sono in laterizio finite con intonaco civile tinteggiato. Immobile libero. Condizioni discrete.per maggiori dettagli consultare i documenti allegati.classe energetica 'd'superficie commerciale: 174 mqpiena proprietà di:laboratorio artigianale (cf): foglio 10 particella 233 subalterno 5 cat c/3magazzino (cf): foglio 10 particella 233 subalterno 6 cat c/2magazzino (cf): foglio 10 particella 263 subalterno 2 cat c/2




Caratteristiche immobile:
Codice inserzione: 1757386882
Rif. Annuncio: 14737
Provincia: Macerata
Comune: Civitanova Marche
Superficie (Mq) : 174 Mq.
Tipo immobile: Negozi uffici capannoni
Stato immobile: usato
Anno costruzione/ristrutturazione: 1958

Costi:
Prezzo € 126.500


Efficienza energetica:
Classe energetica: D
Riscaldamento: autonomo