home page > Annunci immobiliari in Italia > Marche > Macerata > Corridonia > Negozi uffici capannoni in vendita > Scheda immobile

Negozi uffici capannoni in vendita a Corridonia

COMPILA IL MODULO SOTTOSTANTE PER RICEVERE MAGGIORI INFORMAZIONI







Invia la richiesta ad altre agenzie
Accetto il trattamento dei miei dati



Quimmo agency

Via galileo galilei 6
48018 Faenza (RA)

0299944698

Corridonia
Prezzo: info in agenzia
20000



Descrizione:
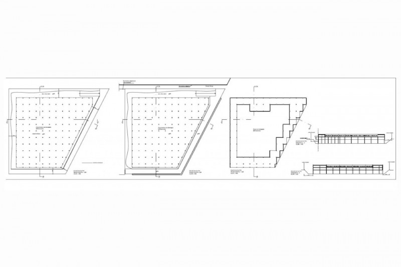
A corridonia proponiamo in vendita un capannone industriale collabente, ideale per operatori del settore o investitori alla ricerca di un immobile da riqualificare integralmente. La struttura, attualmente non utilizzabile, offre tuttavia un eccellente potenziale grazie alla tipologia costruttiva, alla superficie disponibile e alle possibilità di intervento secondo le normative vigenti.l'immobile si presta a molteplici destinazioni d'uso industriali, artigianali o logistiche, previa ristrutturazione completa. La condizione attuale consente massima libertà progettuale per la creazione di nuovi spazi produttivi, depositi o aree operative, adeguabili alle esigenze dell'azienda che subentrerà.soluzione particolarmente indicata per:- imprese che cercano un intervento di recupero con margini di valorizzazione- operatori logistici e produttivi che necessitano di una struttura personalizzabile- investitori orientati a una riqualificazione immobiliare in un'area a vocazione industrialeulteriori informazioni, documentazione e sopralluoghi sono disponibili su richiesta.




Caratteristiche immobile:
Codice inserzione: 1757386379
Rif. Annuncio: 2536527
Provincia: Macerata
Comune: Corridonia
Superficie (Mq) : 20000 Mq.
Tipo immobile: Negozi uffici capannoni
Stato immobile: usato

Costi:
Prezzo info in agenzia


Efficienza energetica: