home page > Annunci immobiliari in Italia > Marche > Macerata > Corridonia > Terreni in vendita > Scheda immobile

Terreni in vendita a Corridonia

COMPILA IL MODULO SOTTOSTANTE PER RICEVERE MAGGIORI INFORMAZIONI







Invia la richiesta ad altre agenzie
Accetto il trattamento dei miei dati



Quimmo agency

Via galileo galilei 6
48018 Faenza (RA)

0299944698

Corridonia
Prezzo: € 1.407.000
11151



Descrizione:
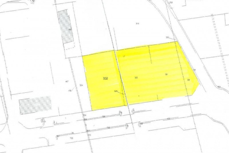
Proponiamo in vendita un terreno edificabile sito a corridonia in località piediripa (mc). L'asset è un'ottima opportunità di investimento per la costruzione di un capannone industriale in quanto il progetto è già in essere, ma si presta bene per qualsiasi tipo di investimento che si voglia effettuare sul terreno.ipotesi di sviluppo:il render raffigurato in pubblicità, secondo il prg vigente, la seguente destinazione urbanistica: zone industriali pip 1 piediripa est (mc) sottozona 1, normate dall'art. 22 ter del prg. In base alle nta del prg sarà possibile edificare mc




Caratteristiche immobile:
Codice inserzione: 1757386399
Rif. Annuncio: 2536563
Provincia: Macerata
Comune: Corridonia
Superficie (Mq) : 11151 Mq.
Tipo immobile: Terreni
Stato immobile: usato

Costi:
Prezzo € 1.407.000


Efficienza energetica: