home page > Annunci immobiliari in Italia > Marche > Macerata > Montecosaro > Attività commerciali in vendita > Scheda immobile

Attività commerciali in vendita a Montecosaro

COMPILA IL MODULO SOTTOSTANTE PER RICEVERE MAGGIORI INFORMAZIONI







Invia la richiesta ad altre agenzie
Accetto il trattamento dei miei dati



Quimmo agency

Via galileo galilei 6
48018 Faenza (RA)

0299944698

Montecosaro
Prezzo: € 427.000
F
708



Descrizione:
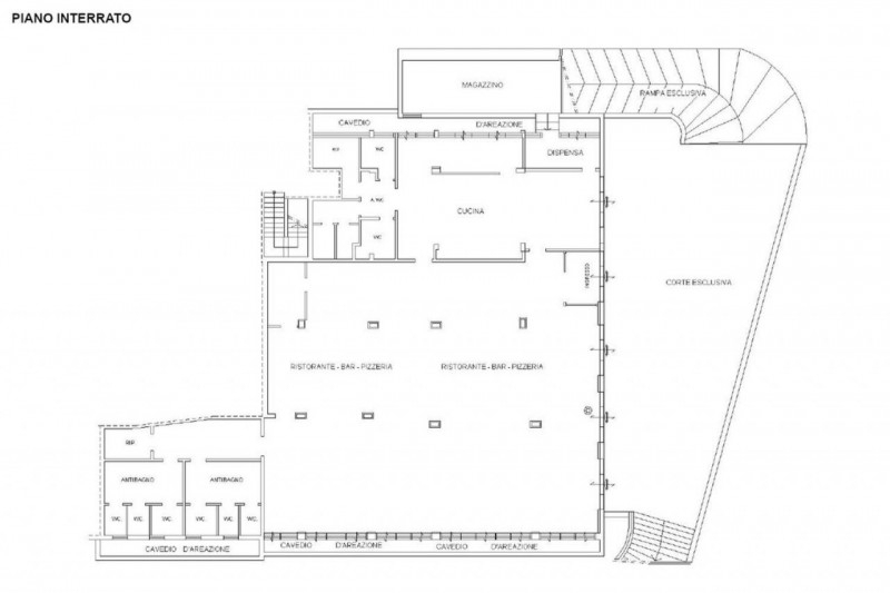
Vendesi porzione di immobile commerciale ad uso ristorante sito a montecosaro (mc), via roma 65-67. Zona centrale a sud del comune, a prevalente destinazione residenziale. Trattasi di locale commerciale ad uso ristorante sito in più ampio complesso con attività commerciali al piano terra e sovrastanti unità immobiliari ad uso abitativo. Il locale in oggetto si sviluppa al piano seminterrato, dispone di area esclusiva coperta allo stesso piano. L'accesso avviene tramite rampa carrabile esclusiva dal piano terreno con area di manovra sempre al piano terreno o tramite rampa pedonale da corte comune. Internamente dispone di ampia zona bar-ristorante, zona servizi igienici sul retro, ampia cucina con servizi igienici per il personale, dispensa e magazzino. Struttura portante in c.a.; solai tipo 'bausta'; muri interni in laterizio intonacati e tinteggiati; pavimentazioni in ceramica monocottura. Infissi esterni in metallo verniciato; infissi interni in legno. Impianto di riscaldamento e climatizzazione autonomo. Impianto di aspirazione per la cucina separato dalla zona pranzo. Immobile libero. Condizioni buone.per maggiori dettagli consultare i documenti allegati.classe energetica: 'f'superficie commerciale: 708 mqpiena proprietà di:unità commerciale (cf): foglio 24 particella 1188 subalterno 41 cat d/8




Caratteristiche immobile:
Codice inserzione: 1757386437
Rif. Annuncio: 14740
Provincia: Macerata
Comune: Montecosaro
Superficie (Mq) : 708 Mq.
Tipo immobile: Attività commerciali
Stato immobile: usato
Anno costruzione/ristrutturazione: 2002

Costi:
Prezzo € 427.000


Efficienza energetica:
Classe energetica: F
Riscaldamento: autonomo