home page > Annunci immobiliari in Italia > Marche > Pesaro e Urbino > Acqualagna > Case e ville indipendenti in vendita > Scheda immobile

Case e ville indipendenti in vendita a Acqualagna

COMPILA IL MODULO SOTTOSTANTE PER RICEVERE MAGGIORI INFORMAZIONI







Invia la richiesta ad altre agenzie
Accetto il trattamento dei miei dati



Abilio s.p.a.

Via galileo galilei 6
48018 Faenza (RA)

0289741561    0546046748    0546046747    Riferimenti: Abilio S.p.A.

Acqualagna
Prezzo: € 87.223
3
3
23



Descrizione:
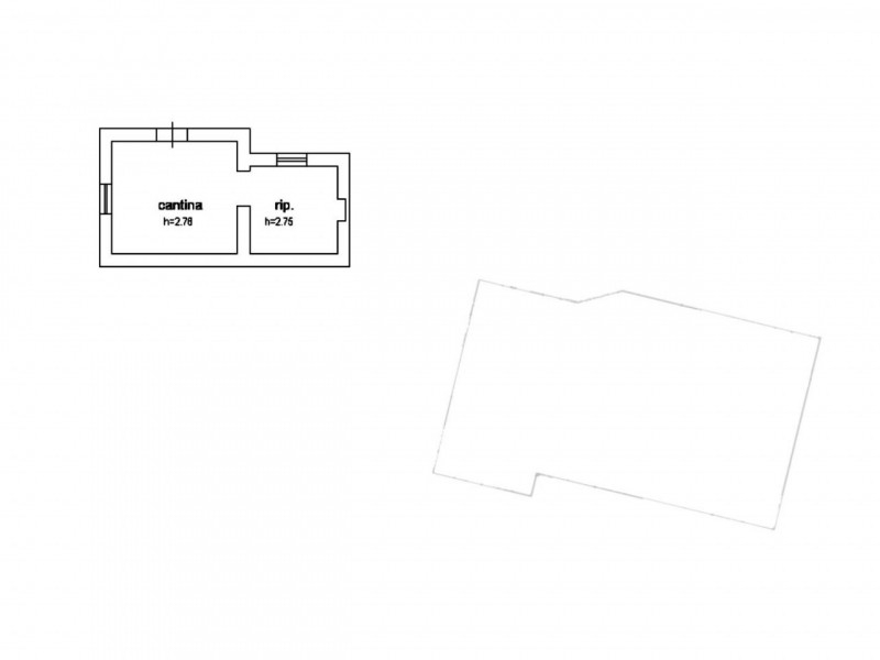
Quest'immobile viene venduto tramite asta online.abitazione indipendente con giardino e magazzino sita a cagli (pu), in via flaminia nord n.232.l'immobile si sviluppa su tre livelli: piano seminterrato, piano terra e primo piano, circondato da un'ampia area cortilizia rifinita a giardino, delimitata da muretti in calcestruzzo e rete metallica.l'abitazione è composta da ingresso, soggiorno, sala, cucina, tre camere, studio, tre bagni, cantina e ripostigli. Gli ambienti sono ben distribuiti e luminosi, con finiture interne di buona qualità, pavimenti in ceramica, infissi in legno e pareti tinteggiate.completa la proprietà un magazzino indipendente, composto da tre locali, ubicato all'interno della corte pertinenziale.l'accesso al compendio è garantito da ingressi pedonale e carraio direttamente dalla via principale.il bene risulta non conforme ma regolarizzabile.per maggiori informazioni vedasi documentazione allegata.quimmo.it: iniziativa tech del gruppo illimity specializzata nell'intermediazione digitale di beni immobili provenienti da tribunali, nuovi sviluppi immobiliari, financial institutions e libero mercato.da oltre 10 anni quimmo.it è il portale specializzato nella compravendita di immobili tramite asta giudiziaria. Il portale è infatti iscritto nel registro gestori della vendita telematica e nell'elenco dei siti web autorizzati allo svolgimento della pubblicità legale. Con quimmo puoi scegliere tra migliaia di immobili di ogni tipo e partecipare alle aste online per acquistare la soluzione più adatta alle tue esigenze.affidati all'esperienza decennale dei nostri esperti e richiedi l'assistenza gratuita per la presentazione e compilazione dell'offerta.contattaci subito.




Caratteristiche immobile:
Codice inserzione: 1764907071
Rif. Annuncio: 2537178
Provincia: Pesaro e Urbino
Comune: Acqualagna
Superficie (Mq) : 23 Mq.
Tipo immobile: Case e ville indipendenti
Stato immobile: usato
Camere: 3
Garage: Singolo
Bagni: 3

Costi:
Prezzo € 87.223


Efficienza energetica:
Riscaldamento: autonomo