Descrizione:
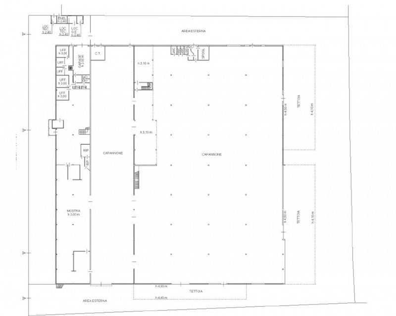
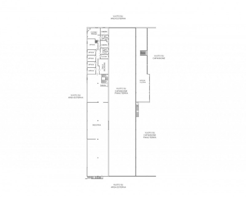
Proponiamo in vendita un complesso immobiliare a destinazione prevalentemente industriale, situato nel comune di fano, in località rosciano, con accesso diretto da via amedeo avogadro n. 3.l'immobile si inserisce in una zona periferica ben collegata, facilmente raggiungibile grazie alla vicinanza alla strada statale ss3, a circa 4 km dal casello dell'autostrada a14 adriatica e a circa 5 km dal centro cittadino, garantendo cosù ottima accessibilità per mezzi pesanti e collegamenti logistici efficienti.la proprietà è costituita da un unico corpo di fabbrica con sviluppo su due piani fuori terra, circondato da una corte esterna perimetrale esclusiva che consente agevoli operazioni di manovra, carico e scarico. Il complesso presenta una forma regolare e funzionale: la parte frontale, distribuita su due livelli, è destinata a uffici e spazi espositivi, mentre la porzione retrostante, prevalentemente a un piano, è adibita a laboratorio produttivo.completano la proprietà tre tettoie, di cui due sul retro e una sul lato del fabbricato, ideali come spazi accessori per lavorazioni o stoccaggio.l'immobile, accatastato in categoria d/8, sviluppa una superficie lorda di circa 7.340 mq (escluse tettoie e area pertinenziale) e una superficie coperta di circa 7.080 mq, rendendolo particolarmente adatto a realtà produttive, commerciali o logistiche che necessitano di ampi spazi organizzati e ben collegati.soluzione ideale per aziende alla ricerca di una sede operativa funzionale, facilmente accessibile e inserita in un contesto infrastrutturale strategico.