home page > Annunci immobiliari in Italia > Marche > Pesaro e Urbino > Mondolfo > appartamenti in vendita > Scheda immobile

Appartamento in vendita a Mondolfo

COMPILA IL MODULO SOTTOSTANTE PER RICEVERE MAGGIORI INFORMAZIONI







Invia la richiesta ad altre agenzie
Accetto il trattamento dei miei dati



Elisabetta fucili

Via paolo ferrari 2/o
61037 Mondolfo (PU)

3456321536    Riferimenti: Elisabetta Fucili

Mondolfo
Prezzo: € 223.000
A4
2
2
79
98



Descrizione:
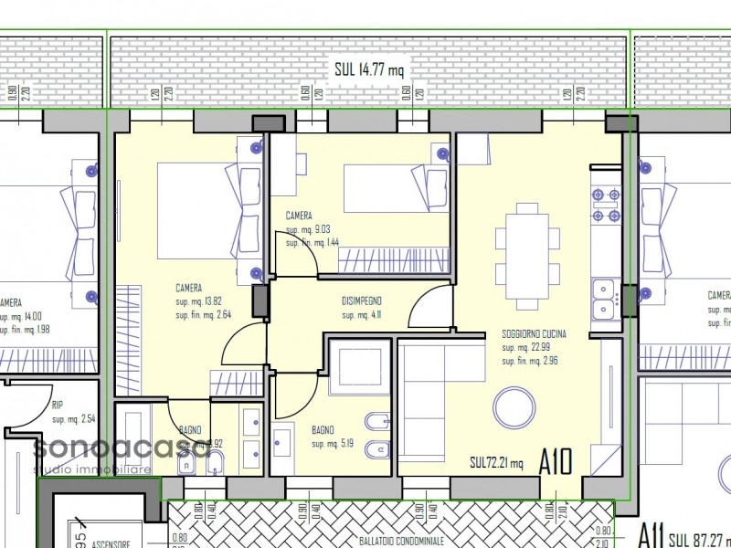
A marotta, in zona residenziale, servitissima ma a due passi a piedi dal mare, grazie al sottopasso pedonale nelle immediate vicinanze, l'agenzia sonoacasa studio immobiliare vende soluzioni abitative in fabbricato di nuova realizzazione. Indipendenza è un progetto immobiliare pensato per chi desidera vivere in una soluzione di ultima generazione, amante del design moderno; per chi ricerca materiali di alta qualità, efficienza energetica, massimi comfort abitativi, affidandosi alla competenza di un'impresa solida, con pluriennale esperienza nel settore edile, e con una visione lungimirante e innovativa. Progetto indipendenza vanta un capitolato di massima scelta, tra cui: riscaldamento a pavimento autonomo, tamponature con blocchi ytong ad alte prestazioni termoacustiche, impianto fotovoltaico con inverter autonomo per ogni unità abitativa di potenza fino a 4,5 kw, produzione energetica in autoconsumo, classe energetica a4 nzeb. Ogni soluzione è disegnata assicurando spazi regolari, suddivisioni interne lineari, balconi e giardini privati a seconda del piano. La posizione rialzata mette al riparo l'edificio da rischi allagamento, garantendo massima sicurezza. Sono previste soluzioni dalla diverse metrature, proprio per soddisfare ogni singola esigenza abitativa. Dal monolocale, smart e veloce per un single, al trilocale con doppi servizi per una famiglia più numerosa o per chi cerca semplicemente più spazio, con possibilità di acquistare uno o più garage interrati, posti auto scoperti o cantine. E' prevista inoltre l'area ecologica, nonché ulteriori parcheggi pubblici sul retro dello stabile. Progetto indipendenza inizierà la sua costruzione a gennaio 2026 e terminerà entro dicembre del 2027. In agenzia vi verranno illustrati i progetti, il capitolato, le finiture, rendering, con possibilità di scegliere materiali e personalizzare le suddivisioni interne. Ideale sia per viverci tutto l'anno, sia per le tue vacanze al mare! puoi prenotare la tua soluzione preferita da subito: senza alcun rischio o stress, affidati a noi, ti guideremo passo passo nella realizzazione del tuo progetto. Trilocale (due camere e due bagni), tuo a partire da 223.000,00 (esclusiva di vendita in collaborazione con immobiliare pierini)




Caratteristiche immobile:
Codice inserzione: 1759460137
Rif. Annuncio: A085
Provincia: Pesaro e Urbino
Comune: Mondolfo
Zona: Marotta  
Superficie (Mq) : 79 Mq.
Tipo immobile: Appartamento
Stato immobile: nuovo
Anno costruzione/ristrutturazione: 2026
Piano: Piano terra
Camere: 2
Bagni: 2

Costi:
Prezzo € 223.000


Efficienza energetica:
Classe energetica: A4
Riscaldamento: autonomo a pavimento