Descrizione:
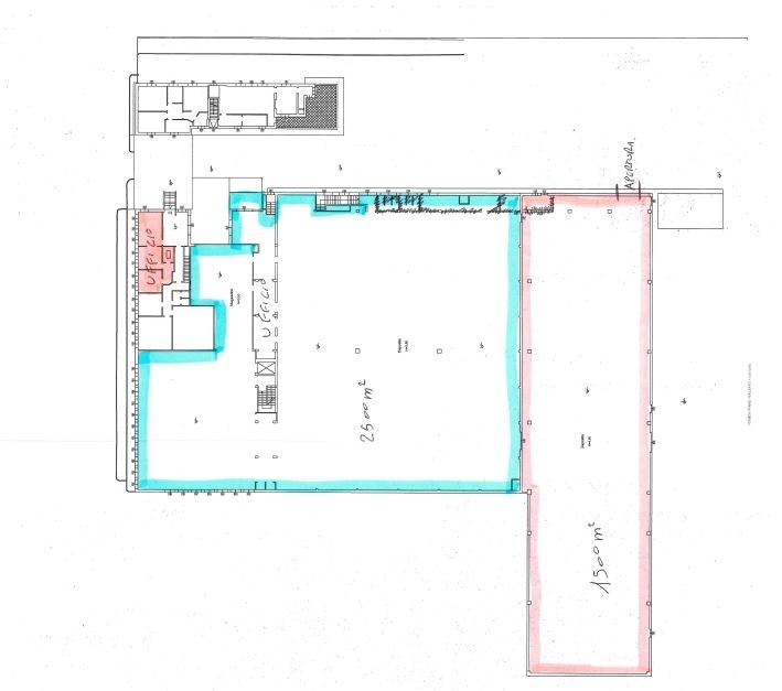
Proponiamo in locazione porzione di capannone industriale completamente ristrutturato con ottima illuminazione interna.caratteristiche:- superficie di circa 1500 metri quadri nella planimetria porzione contornata di rosso- altezza minima di 4,5 metri- uffici non collegati ma fronte strada con possibilità di posizionare insegne- posti auto esterni disponibili auto,furgoni ed altro.ideale per:- attività industriali- logistica e stoccaggio- produzione e manifatturacontattaci allo per venire a vederlo.la nostra agenzia è strutturata per fornirvi, gratuitamente, assistenza per la richiesta di mutuo, notaio, tecnici e quanto necessario tramite gli istituti bancari ed i professionisti che collaborano con noi.visita il nostro sito per altre interessanti occasioni: Bbimmobiliare.itseguici sulla nostra pagina facebook e su instagram.ci trovi a biella , via lorenzo delleani 20 al piano rialzato.devi vendere casa? chiamaci per una valutazione gratuita del tuo immobile.