home page > Annunci immobiliari in Italia > Piemonte > Cuneo > Alba > Negozi uffici capannoni in affitto > Scheda immobile

Negozi uffici capannoni in affitto a Alba

COMPILA IL MODULO SOTTOSTANTE PER RICEVERE MAGGIORI INFORMAZIONI







Invia la richiesta ad altre agenzie
Accetto il trattamento dei miei dati



Prestigio immobiliare srl

Corso michele coppino 13
12051 Alba (CN)

0173590510    Riferimenti: Francesco Rolando

Alba
Prezzo: info in agenzia
1000



Descrizione:
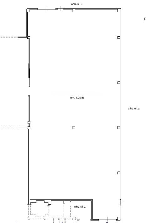
A pochi chilometri da alba, proponiamo in affitto un capannone di metratura pari a 1.000 mq, situato all'interno dell'area del barolo, comodo alle principali vie di comunicazione a 200 metri dall'uscita della tangenziale. questo immobile è caratterizzato da un'altezza interna di ben 8,2 metri sotto trave, offrendo cosù ampie possibilità di utilizzo e ottimizzazione degli spazi.collocato in posizione fronte strada, l'immobile è dotato di ampio piazzale esterno che consente una comoda manovra dei mezzi pesanti e offre ulteriori opportunità per il parcheggio.l'immobile sarà libero da gennaio 2026.la nostra agenzia è disponibile per fornire maggiori informazioni o per organizzare una visita senza impegno.




Caratteristiche immobile:
Codice inserzione: 1764129064
Rif. Annuncio: CAP1286
Provincia: Cuneo
Comune: Alba
Superficie (Mq) : 1000 Mq.
Tipo immobile: Negozi uffici capannoni
Anno costruzione/ristrutturazione: 1987

Costi:
Prezzo info in agenzia


Efficienza energetica:
Classe energetica: Immobile non soggetto all'obbligo di certificazione