home page > Annunci immobiliari in Italia > Piemonte > Novara > Suno > Case e ville a schiera in vendita > Scheda immobile

Case e ville a schiera in vendita a Suno

COMPILA IL MODULO SOTTOSTANTE PER RICEVERE MAGGIORI INFORMAZIONI







Invia la richiesta ad altre agenzie
Accetto il trattamento dei miei dati



Immobiliare botto oleggio

Via a. Gramsci 73
28047 Oleggio (NO)

03211512352    Riferimenti: Immobiliare Botto Oleggio

Suno
Prezzo: € 230.000
2
2
220
1
1



Descrizione:
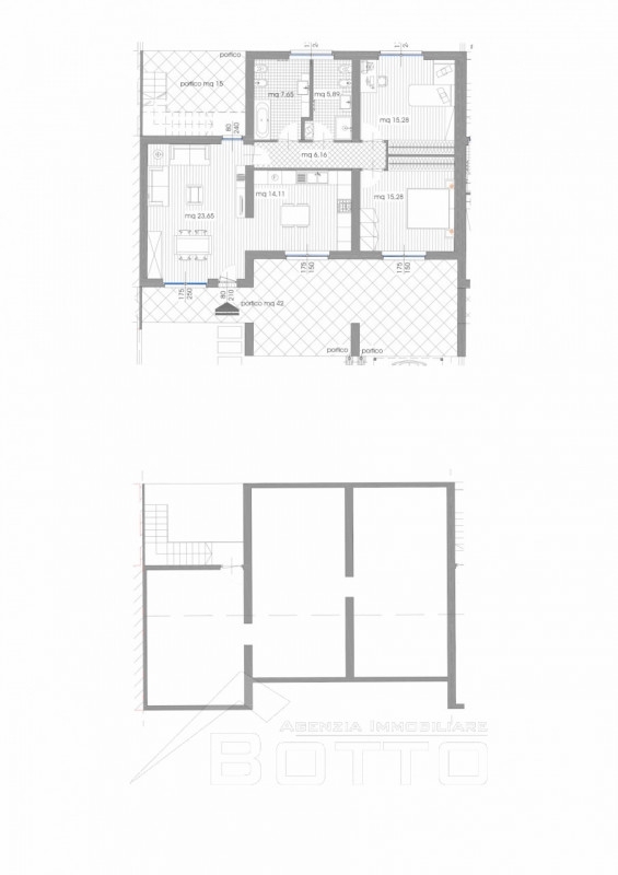
Questa villetta a schiera in vendita si trova a suno ed è di nuova costruzione.l'immobile è disposto su 2 livelli cosù composti:- piano terra di circa 110 mq con ingresso su soggiorno, cucina abitabile, 2 camere, 2 bagni e 2 porticati, uno sul fronte e uno sul retro;- al 1° piano si trova un locale mansardato di circa 110 mq da poter personalizzare secondo le proprie esigenze.a completare la proprietà troviamo anche 2 giardini, uno all'ingresso della casa e uno sul retro. Questa proprietà al momento si trova al rustico, ma viene consegnata terminata con finiture da capitolato in circa 6 mesi dal momento dell'acquisto. Dotata di riscaldamento a pavimento, personalizzabile anche con pannelli fotovoltaici, questa villetta è perfetta per la famiglia che è alla ricerca di una sistemazione parzialmente indipendente e con un bel giardino dove far scorrazzare il proprio amico a 4 zampe. Situata nella tranquilla zona di baraggia di suno, questa casa è adatta a te se stai cercando una soluzione con i giusti spazi, luminosa e nuova. Chiamaci per saperne di più!




Caratteristiche immobile:
Codice inserzione: 1757558470
Rif. Annuncio: 4-SUNBEL
Provincia: Novara
Comune: Suno
Superficie (Mq) : 220 Mq.
Tipo immobile: Case e ville a schiera
Stato immobile: nuovo
Piano: 1
Camere: 2
Posti auto scoperti: 1 posto auto
Bagni: 2

Costi:
Prezzo € 230.000


Efficienza energetica:
Classe energetica: Immobile non soggetto all'obbligo di certificazione
Riscaldamento: autonomo a pavimento