3493905372 Riferimenti: Mauro Aglietto
Descrizione:
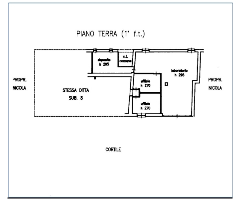
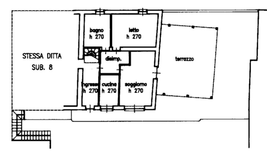
Rif: piena proprietà di un compendio immobiliare costituito da due unità abitative, laboratorio/uffici e due depositi, oltre a comproprietà del cortile antistante.1. Al piano terreno del fabbricato principale, con accesso dal cortile comune, laboratorio in unico vano, deposito a tergo e centrale termica comune ad altra unità, con porticato verso cortile.mq.1182. Al piano terreno del fabbricato principale, con accesso dal cortile comune, alloggio composto di ingresso, camera, cucina, disimpegno, bagno ed ulteriore camera (ex uffici), con porticato verso cortile.3. Al piano primo e sottotetto, con accesso dalla scala esterna comune ad altra proprietà, alloggio composto di ingresso, disimpegno, cucina, soggiorno, camera da letto e bagno, oltre a terrazzo parzialmente coperto da struttura lignea, al piano; al piano sottotetto (per l'intero sviluppo dello stesso e quindi sovrastante in parte ad altra proprietà), cinque vani non abitabili, disimpegno e due bagni;4. Al piano terreno, basso fabbricato nel cortile, costituito da unico vano destinato a deposito con bagno con accessi pedonali e carrai dall'antistante cortile comune. Mq. 355. Al piano terreno, basso fabbricato nel cortile, costituito da vano destinato a deposito con ulteriore piccolo vano contiguo a tergo, mq. 15le fotografie allegate hanno finalità puramente illustrative e potrebbero non rappresentare in modo esaustivo l'immobile. L'esattezza di tutti i dati pubblicati sarà verificata e confermata in sede di consulenza.se desidera valutare l'acquisto di un immobile in asta in totale trasparenza e sicurezza, si affidi alla nostra competenza e serietà. Offriamo un supporto completo al cliente, accompagnandolo a 360° lungo tutto il percorso tecnico e finanziario, dalla scelta dell'immobile alla partecipazione alla gara d'asta.contattaci per una consulenza gratuita presso il nostro studio. Gli immobili acquistati tramite aste giudiziarie sono mutuabili e finanziabili alle stesse condizioni di quelli presenti sul mercato libero.i nostri servizi ci dedichiamo con passione e professionalità a:aste giudiziariecompravendita immobiliare (residenziale, commerciale e industriale)cessione d'aziendail nostro obiettivo è offrire un servizio efficace, su misura e orientato ai risultati.nota per investitori. La nostra strategia si focalizza sull'acquisizione a forte sconto di crediti ipotecari e npl (non performing loans), oggi tra le opportunità di investimento più interessanti. Proponiamo due modalità operative:saldo e stralcio immobiliareasta pilotata remissiva stragiudiziale
| Codice inserzione: | 1766368558 |
| Rif. Annuncio: | 1379170/1593/4501873 |
| Provincia: | Torino |
| Comune: | Carignano |
| Superficie (Mq) : | 172 Mq. |
| Tipo immobile: | Case e ville indipendenti |
| Stato immobile: | usato |
| Piano: | 1 |
| Bagni: | 2 |
| Prezzo | € 108.750 |