home page > Annunci immobiliari in Italia > Piemonte > Torino > Caselle Torinese > Negozi uffici capannoni in vendita > Scheda immobile

Negozi uffici capannoni in vendita a Caselle Torinese

COMPILA IL MODULO SOTTOSTANTE PER RICEVERE MAGGIORI INFORMAZIONI







Invia la richiesta ad altre agenzie
Accetto il trattamento dei miei dati



Quimmo agency

Via galileo galilei 6
48018 Faenza (RA)

0299944698

Caselle Torinese
Prezzo: € 620.000
465



Descrizione:
Scoprite un'opportunità unica di investimento con la compravendita in blocco dei nostri negozi situati all'interno del prestigioso centro commerciale castello shopping. Ogni locale è già a reddito, garantendo un ritorno immediato e sicuro sul vostro investimento.perché scegliere i nostri negozi?• posizione strategica: situati nel cuore di torino caselle, i nostri negozi godono di un flusso costante di visitatori, grazie alla vicinanza con importanti arterie stradali e mezzi di trasporto pubblico.• reddito garantito: tutti i locali sono attualmente affittati, offrendo una fonte di reddito stabile e affidabile.• varietà di offerta: dalla moda alla ristorazione, i nostri negozi ospitano una vasta gamma di attività commerciali, attirando una clientela diversificata e fidelizzata.• servizi di alta qualità: il centro commerciale offre servizi di sicurezza, pulizia e manutenzione di alto livello, assicurando un ambiente sempre accogliente e ben curato.non perdete l'occasione di investire in un'area commerciale di successo. Contattateci oggi stesso per maggiori informazioni e per scoprire come diventare parte del castello shopping di torino caselle!




Caratteristiche immobile:
Codice inserzione: 1758596407
Rif. Annuncio: 26275
Provincia: Torino
Comune: Caselle Torinese
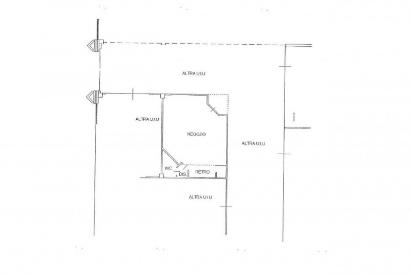
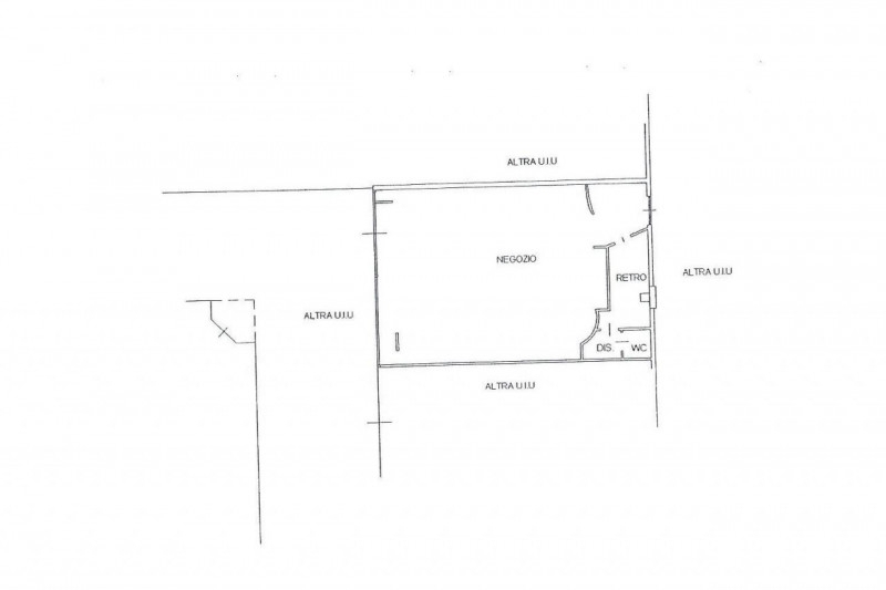
Superficie (Mq) : 465 Mq.
Tipo immobile: Negozi uffici capannoni
Stato immobile: usato

Costi:
Prezzo € 620.000


Efficienza energetica: