Descrizione:
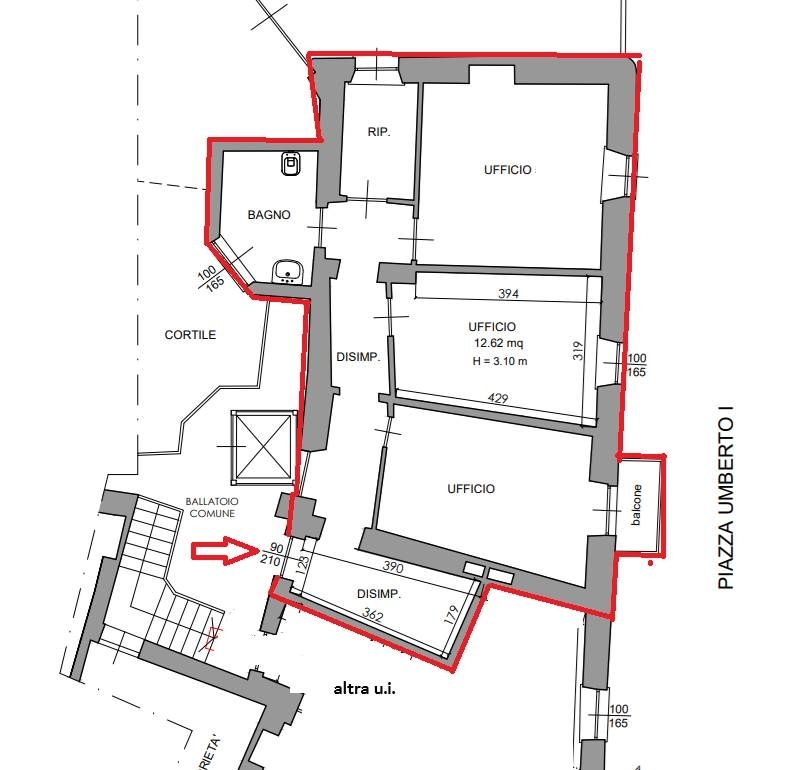
Orbassano - ampio locale commerciale uso ufficio di 87 mq., sito al primo piano, in zona centrale e di forte passaggio. Ideale per studi professionali o per locale di rappresentanza.completamente ristrutturato a nuovo, riscaldamento autonomo. nessuna barriera architettonica e ascensore.canone: 900,00 euro mensilichiama per informazioni pragmacase: il presente documento non costituisce elemento contrattuale. Classe energetica: c epi: 275,61 kwh/m3 anno
| Codice inserzione: | 1772073053 |
| Rif. Annuncio: | P-Umberto |
| Provincia: | Torino |
| Comune: | Orbassano |
| Superficie (Mq) : | 87 Mq. |
| Tipo immobile: | Negozi uffici capannoni |
| Stato immobile: | ristrutturato |
| Piano: | Ultimo piano |
| Bagni: | 1 |
| Prezzo | € 900 |
| Classe energetica: | C |
| Indice di prestazione energetica (EPgl): | 275.61 kWh/mc annui |
| Riscaldamento: | autonomo |