home page > Annunci immobiliari in Italia > Piemonte > Torino > Rivoli > Negozi uffici capannoni in vendita > Scheda immobile

Negozi uffici capannoni in vendita a Rivoli

COMPILA IL MODULO SOTTOSTANTE PER RICEVERE MAGGIORI INFORMAZIONI







Invia la richiesta ad altre agenzie
Accetto il trattamento dei miei dati



Haston & aston s.n.c.

Via pietro micca, 21
10121 Torino

0115622525    +.39.0115613950

Rivoli
Prezzo: Info in agenzia
2950



Descrizione:
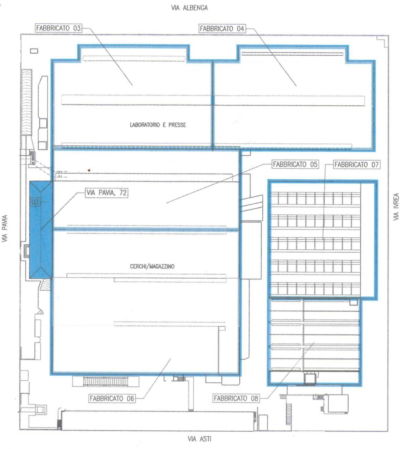
Il complesso industriale in vendita si trova nella zona di cascine vica a rivoli, in provincia di torino, adiacente all'uscita corso allamano della tangenziale di torino ed alla direttrice di corso francia.l'area è composta da 3 immobili, costruzioni degli anni 60, e di un piazzale di mq. 7.500 circa cintato, con guardiola all'ingressoun capannone di circa mq. 6.000, suddivisi in circa mq. 3.500 al piano terreno (h 5,0 mt), ed ulteriori mq. 2.500 al primo piano (h 8,5 mt), raggiungibili con un grande montacarichi (portata kg. 15.000). L'immobile si presenta in uno stato di conservazione da ripulirela palazzina uffici per un totale di mq. 1.100 circa, molto luminoso, ed è composto da molteplici locali e bagni. Lo stato di conservazione dell'immobile è discreto; presente una portineria; sono disponibili 20 posti auto scoperti.un edificio, superficie totale di mq. 20.850 circa, composto di 7 campate alcune con carroponte. Lo stato di conservazione del capannone è discreto, il tetto in parte già bonificato, la pavimentazione regolare al 70%; è compresa una zona uffici, di mq. 1.850. Dispone di 5 ingressi carrai. Libero




Caratteristiche immobile:
Codice inserzione: 1764827124
Rif. Annuncio: 115832
Provincia: Torino
Comune: Rivoli
Superficie (Mq) : 2950 Mq.
Tipo immobile: Negozi uffici capannoni
Stato immobile: recente
Stato al rogito: Libero

Costi:
Prezzo Info in agenzia


Efficienza energetica: